UPPER HILL SIDE, das sind die Stadt und der Park, von oben betrachtet. Das zeitgenössische Haus mit 59 Apartments steht im Herzen von Oberdöbling. Schon die Römer haben die hohe, freie Lage des Stadtteils am Hügel als wertvoll erkannt. Aber nicht nur sie: Großzügige Fenster rahmen heute den Blick auf Wiens Vielfalt. Balkone, Terrassen und Gärten schaffen eine Verbindung zum grün-urbanen Rundum. UPPER HILL SIDE in der Obersteinergasse 11 schwebt über den Dingen.
Die Fassade mit ihren Stützen, Öffnungen, Rück- und Vorsprüngen rechts und links außen erinnert an die Architektur barocker Sommerresidenzen. Das Bestandsgebäude wird durchgreifend revitalisiert und um zwei fulminante Dachgeschoßebenen erweitert. Die markante Dach- und Terrassenlandschaft der Penthouses vergrößert gekonnt den Wohnraum und sorgt für individuelle Freiflächen. So soll es sein. Das Volumen des Hauses lässt Raumangebot und Wohnkomfort erahnen. Durch die großformatigen Fenster dringt viel Licht, die Atmosphäre ist wohlig, die Aussicht spektakulär.
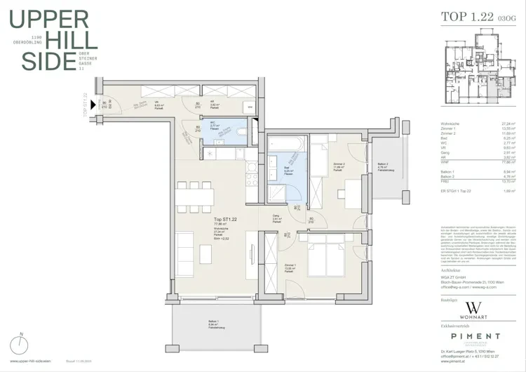
Durchdachte Grundrisse, großzügige Freiflächen und eine hochwertige Ausstattung sind die Grundprämisse für dieses Projekt. Special Features wie „Kunst im Wohnraum“ sowie ein mobiler Concierge-Service sorgen für besondere Akzente. Das Projekt wurde im Herbst 2023 fertiggestellt.







































































































































































