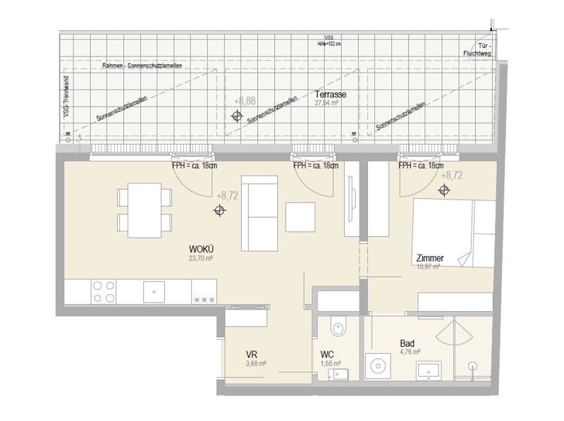
WOHNEN IM 21 - FLORIDUS 35I37 - In BEST-Lage des 21. Bezirks entsteht das traumhafte Eigentumsprojekt "FLORIDUS 35I37" mit Wohneinheiten von 1 bis 3 Zimmern. Das Gebäude fügt sich perfekt in die Umgebung ein und vereint wunderschöne Natur mit moderner Architektur zu einer perfekten Einheit. Insgesamt werden 40 Wohneinheiten und 4 Townhouses erricht. Ob Pacht- oder Eigengrund, wir haben die Wahl - Sie die Auswahl.


















































