Zum Inhalt springen

Wiedner Hauptstraße 140

Wien
Margareten
Wiedner Hauptstraße, 140

€364.000

€9.384 pro m²
  • Infrastruktur
  • Tiefgarage
  • Bild 1 von 1

Grundlegende Informationen

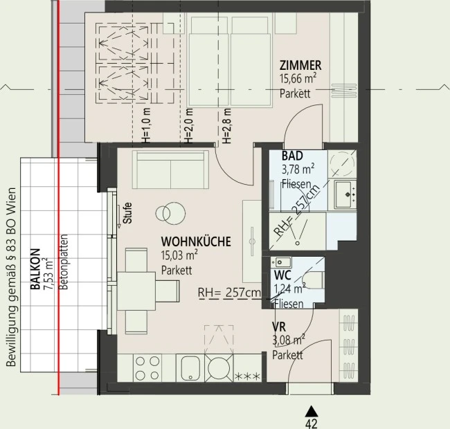
2 Zimmer

Wohnfläche 38.79 m²

Stockwerk 7 von 8

Terrasse 4.29 m²

Balkon 3.24 m²


Lage von Wiedner Hauptstraße 140

Im hochwertigen Wohn- und Atelierhaus werden 42 Wohnungen und 15 trendigen „"Townhouses" mit herrlichen Terrassen und Eigengärten im Wohnungseigentum realisiert.
Die unterschiedlichen Wohnungstypen zwischen 30 und 107 m² mit ein bis vier Zimmern bieten Raum für Singles, Paare und Familien.

Das Projekt zeichnet sich durch eine moderne und ansprechende Architektur aus.
Besonders erwähnenswert ist auch die überdurchschnittliche Raumhöhe von ca. 2,80 m, die für ein angenehmes und großzügiges Raumgefühl sorgt sowie ein fantastischer Fernblick über die Stadt bis zum Kahlenberg.

Weitere Highlights:
• durchdachte Grundrisse mit großzügigen Wohnküchen
• attraktive Freiflächen
• Eichen-Parkettboden in den Aufenthaltsräumen
• hochwertige Kunststoff-Alufenster
• Marken-Sanitärausstattung sowie Designfliesen aus Feinsteinzeug in den Nassräumen
• Innentüren mit Durchgangslichte von 2,10 m, wenn möglich
• elektrische Außenbeschattung (Sonnenschutz) in den Aufenthaltsräumen
• Fußbodenheizung und Fußbodenkühlung (Stützkühlung)
• Fernwärme, sowie Photovoltaikanlagen auf den begrünten Flachdächern
• Kinderwagen- und Fahrradraum
• Sicherheitstüren mit Mehrfachverriegelung und Videogegensprechanlage


Das Haus
Ein besonderes Augenmerk wurde auf ökologische Nachhaltigkeit gelegt. Alle Dächer sind begrünt und mit Photovoltaikanlagen ausgestattet. Die zentrale Wärmeaufbereitung und die Raumheizungen werden vom öffentlichen Versorgungsnetz gespeist, die zentrale Kälteversorgung funktioniert über eine Luftwärmepumpe im Untergeschoß mit einem Rückkühler auf dem Dach der Innenhofbebauung

Den Wohnungseigentümern steht zudem im großzügigen und hellen Foyer das digitale Infoboard „"puck", sowie ein moderner behindertengerechter Aufzug zur Verfügung, mit dem auch die Garagenplätze direkt erreichbar sind. Mit Blick in die Zukunft wurden hier bereits Vorbereitungen für E-Mobilität getroffen. Abstellräume für Kinderwagen und Fahrräder, sowie Paketempfangsboxen ergänzen die umfassende Ausstattung des Hauses. Zusätzlich ist jeder Wohneinheit ein Einlagerungsraum zugeordnet.


Lage
Die Wiedner Hauptstraße ist eine lebendige Geschäftsstraße mit einer Reihe von Nahversorgern, Restaurants und Gasthäusern, Supermärkten und kleinen Läden.
Von hier erreicht man die Oper und den Stephansplatz fußläufig oder mit mehreren Straßenbahnlinien. Mit der Fertigstellung der U2-Bahnerweiterung wird das Haus durch die 5 Minuten entfernte Station „Matzleinsdorfer Platz“ direkt an das U-Bahnnetz angeschlossen sein. Hier kann auch in die S-Bahn und die Züge der ÖBB zugestiegen werden. Der Wiener Hauptbahnhof ist in 20 Minuten zu Fuß erreichbar.

images.png

Bauträger

JP IMMOBILIEN

N/A

Öffnungszeiten:

  • Mon - Thur
  • Fri

4 Abgeschlossene Projekte

1 Projekte im Bau


Mehr über JP IMMOBILIEN

Top-Projekte

Alle anzeigen