Zum Inhalt springen

Stock im weg 1

Wien
Hietzing
Stock im weg, 1

€319.000

€7.144 pro m²
  • Tiefgarage
  • Infrastruktur
  • Kinderspielplatz
  • Bild 1 von 1

Grundlegende Informationen

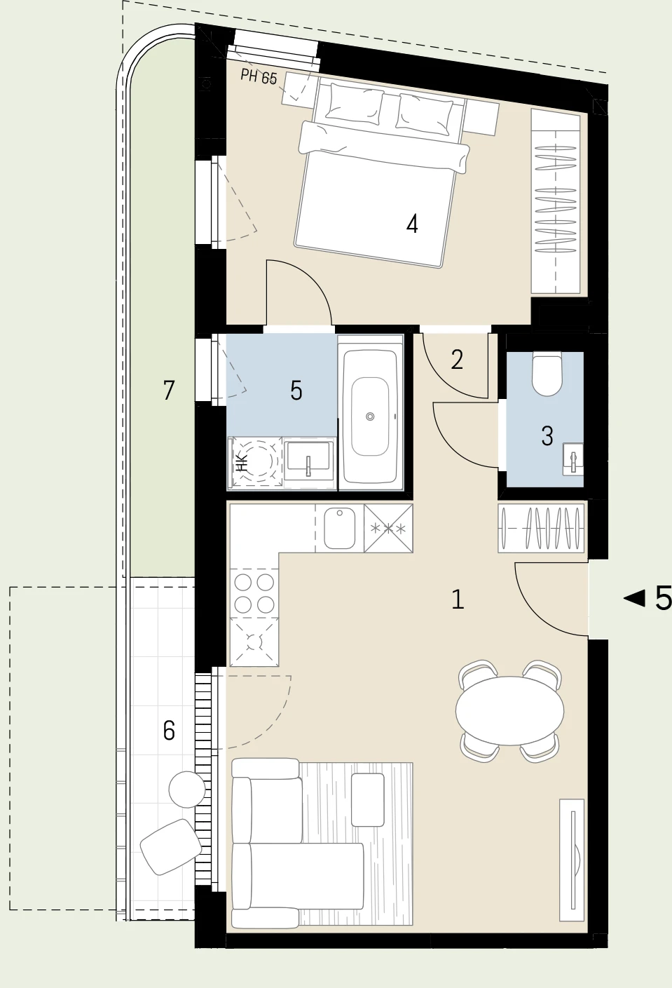
2 Zimmer

Wohnfläche 44.65 m²

Stockwerk 1 von 4

Terrasse 3.38 m²

Garten 5.22 m²


Lage von Stock im weg 1

Unweit des Lainzer Tiergartens entsteht das zukunftsweisende Neubauprojekt „"STOCK IM WEG“ mit 41 hochwertigen Eigentumswohnungen, die individuellen Wohnbedürfnissen gerecht werden. Erschlossen über drei separate Stiegenhäuser werden auf sechs Etagen unterschiedliche Wohnungstypen zwischen 45 und 150 Quadratmetern errichtet. Ob Erdgeschosswohnung mit eigenem Garten, elegantes Single-Apartment oder luxuriöses Dachgeschoss, STOCK IM WEG bietet für jedes Bedürfnis den passenden Lebensraum und lässt sowohl im Innen-, als auch im Außenbereich Möglichkeit sich seinen persönlichen Wohntraum zu erfüllen.

Ausstattung:
Sonnendurchflutete Räume, großzügige Grünoasen und ein traumhafter Ausblick – all das könnte bald Ihnen gehören.

Jede Wohnung wird mit einem hochwertigen Fischgrätparkett ausgestattet. In Bad und WC finden sich moderne Fliesen sowie eine edle Sanitärausstattung eines renommierten Herstellers wieder.
Die Fußbodenheizung bzw. die effiziente Deckenkühlung (Bauteilaktivierung), sowie der außenliegende elektrisch bedienbare Sonnenschutz helfen die Temperaturen und Lichtverhältnisse in den Innenräumen optimal zu jeder Jahreszeit zu regulieren.
Eine Sicherheitstüre mit Mehrfachverriegelung sowie eine Gegensprechanlage mit Videofunktion sorgt für zusätzliche Sicherheit.

Jede Wohneinheit verfügt über eine Freifläche (Garten, Balkon, Loggia oder Terrasse) auf der Vorrichtungen für eine Wasserversorgung, sowie ein Stromanschluss vorhanden sein werden.
Ein Kellerabteil, welches über zwei Fahrradhalterungen und einen Stromanschluss verfügt, ist jeder Wohnung zugeordnet.

Abgerundet wird das Angebot durch einen hauseigenen Fitnessraum mit modernsten Technogym Geräten, einen Kleinkinderspielplatz, einen Kinderwagenraum pro Stiege, praktische Paketempfangsboxen sowie das digitale schwarze Brett „puck“. Außerdem verfügt das Projekt über eine hauseigene Tiefgarage samt Vorbereitungen für E-Mobilität.

Lage:
Das Wohnhaus liegt mitten in Ober Sankt Veit, unweit des Hietzinger Platzls.
Nahversorger, feine Delikatessengeschäfte und ein wöchentlicher Bauernmarkt mit regionalen Köstlichkeiten sind ebenso in unmittelbarer Nähe wie trendige Boutiquen, hochwertige Gastronomie und legendäre Kaffeehäuser.

Die öffentliche Verkehrsanbindung ist durch die Buslinien 54A (hält direkt vor der Haustüre), sowie 54B und der 15 Minuten entfernten U4 Station „Ober St. Veit“ bestens gegeben.

Wer das Leben in der Stadt liebt, aber dennoch den Plausch mit den Nachbarn schätzt, beim Greissler ums Eck einkauft und die Natur direkt vor der Türe braucht, der ist hier richtig.

images.png

Bauträger

JP IMMOBILIEN

N/A

Öffnungszeiten:

  • Mon - Thur
  • Fri

4 Abgeschlossene Projekte

1 Projekte im Bau


Mehr über JP IMMOBILIEN

Top-Projekte

Alle anzeigen