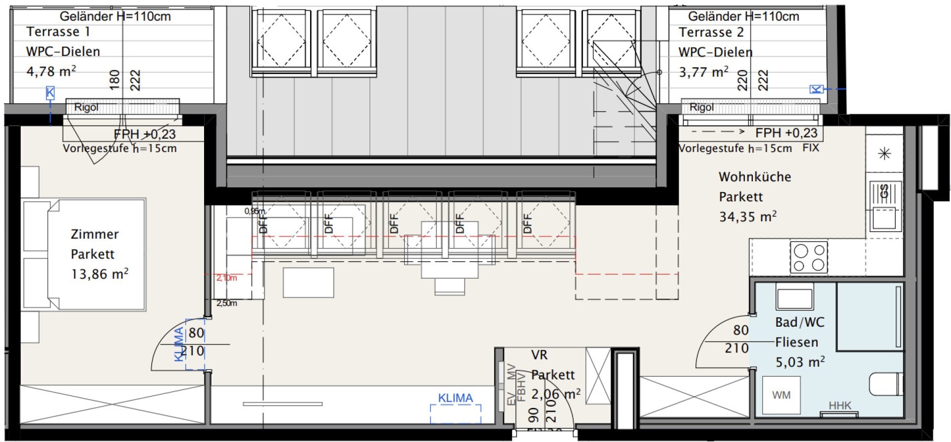
In unmittelbarer Nähe zur Wagramer Straße bzw zum Donauzentrum und fußläufig von der U1 Kagraner Platz entfernt, wurde ein Projekt mit rund 73 Eigentumswohnungen und mehreren Dachgeschosswohnungen im 1. bzw 2. Dachgeschoss.
Alle Dachgeschosswohnungen verfügen über
Balkone, Terrassen oder Dachterrassen
Mehrfach-Isolierte Glaselemente
zukunftsorientiert Wärmeversorgung mittels Fernwärme und Fußbodenheizung
Klimaanlagen für die wärmeren Tage
Außerdem gibt es noch elektrische Außenjalousien, qualitativ hochwertige Parkettböden in den Zimmern bzw Fliesen in den Bädern und Toiletten. In der Bau- und Ausstattungsbeschreibung finden Sie detaillierte Beschreibungen zu den vorhandenen Materialien. Bei Interesse stellen wir Ihnen diese gerne zur Verfügung.
Alle Wohneinheiten werden schlüsselfertig und ohne Küchen übergeben. Bei Interesse leiten wir Ihnen gerne den Kontakt zu entsprechenden Küchenanbietern weiter.
Hausinterne Garagenstellplätze können erworben werden. Ansonsten gibt es neben Fahrrad- sowie Kinderwagenräumen und Einlagerungsräumen, auch noch einen
hauseigenen Gemeinschaftsgarten mit Spielplatz, einen Gemeinschaftsraum und einen Home-Office Bereich.








































































































































































