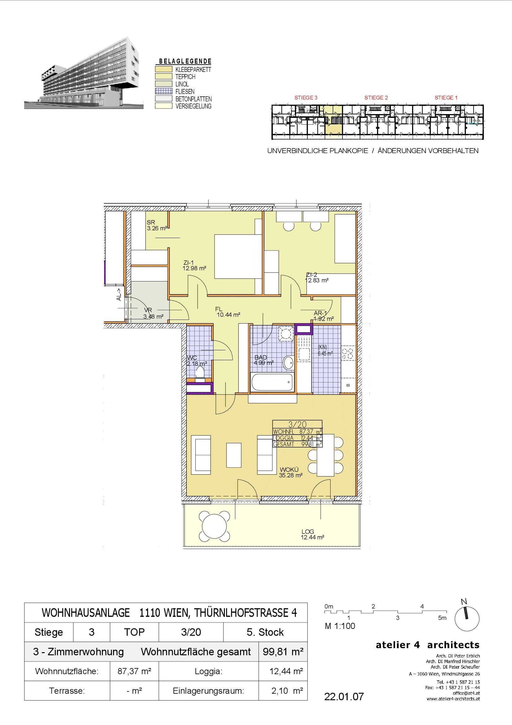
Das Projekt
Die Familienwohnbau hat im Jahr 2008 auf dem perfekt gelegenen Areal des Thürnlhof West im 11. Wiener Gemeindebezirk eine moderne Wohnhausanlage mit 91 geförderten Mietwohnungen mit Kaufoption errichtet.
Nach Ablauf der 10 Jahre und aufgrund einiger Rücktritte können wir Ihnen ab sofort einige Wohnungen zum Kauf anbieten.
Den Bewohnern steht ein Swimmingpool im Gartenbereich, ein Kinderspielplatz sowie ein großzügiger Chill-Out-Bereich im 8. Stock mit Gemeinschaftsraum, Terrasse und Wellnessbereich samt Sauna zur Verfügung.
Geheizt wird mittels Fernwärme - in den Wohnungen sorgt die Decken-Heizung für wohlige Wärme in der kalten Jahreszeit.
Die Infrastruktur
… Einkaufen in unmittelbarer Umgebung oder auf der nahe gelegenen Simmeringer Hauptstraße
… mit der Linie 71 Richtung Zentrum und zum Verkehrsknoten U3 Simmering
… mit dem Auto rasch auf die A23
… mit den Kindern ins Frei- und Hallenbad Simmering
… zum Spazieren in das Erholungsgebiet Laaer Wald
… zu den Veranstaltungen in das Schloß Neugebäude







































































































































































