AUSSTATTUNG
41 Wohnungen 2 bis 4 Zimmer mit großzügigen Freiflachen (Terrassen, Balkone, Loggien oder Eigengärten)
ein Büro im EG mit direktem Zugang von der Straße
außenliegender Sonnenschutz
Deckenheizung und -kühlung
Wärmepumpenanlage mit Geothermie (Tiefenbohrungen)
Photovoltaikanlage
Gemeinschafts-SAT-Anlage
Tiefgarage mit 23 Stellplätzen
Kinderwagen- und Fahrradabstellräume
Die Details
Ein Wohntraum mit Seltenheitswert: Malerisch im Grünen gelegen, entstehen in Hietzing 40 hochwertige Eigentumswohnungen und ein Büro mit 37 m². Sie bieten durch ihre außergewöhnliche Lage die ideale Kombination aus Vorstadtidylle und hervorragender Infrastruktur.
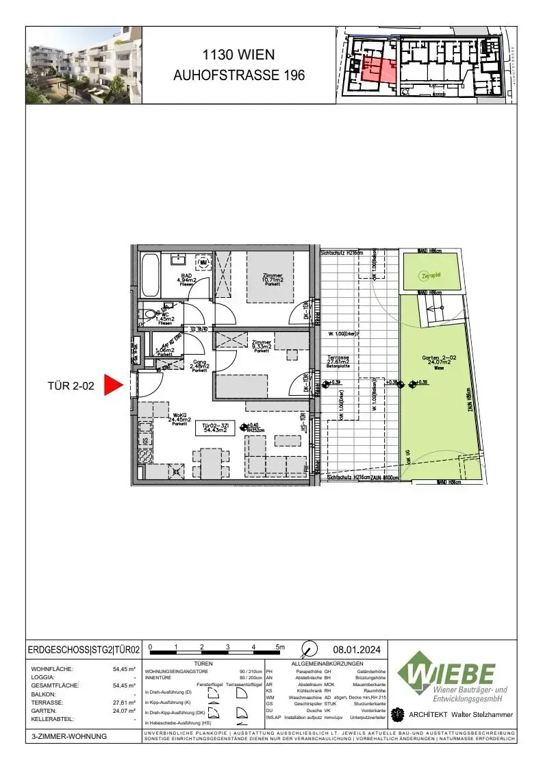
Die freifinanzierten Luxuswohnungen von 43 m² bis 90 m² mit zwei bis vier Zimmer verfügen über großzügige Freiflächen wie, Balkon, Terrasse, Loggia oder Eigengärten entsprechen auch in Punkto Ausstattung den höchsten Ansprüchen.
Stellplätze in der Hauseigenen Tiefgarage könne um € 33.500,-- dazu gekauft werden
Die Wohnungen können auch als Anleger erworbern werden.
Die Infrastruktur
Der Bahnhof mit S-Bahn und U4-Anschluss sind fußläufig nur 5 Minuten entfernt, mit der A1 ist auch für Pendler per Auto eine perfekte Anbindung gewährleistet.
Die zahlreichen Grünflachen des Bezirkes lassen naturnahes Wohnen mit urbanem City-Feeling zur perfekten Kombination verschmelzen.







































































































































































