Zum Inhalt springen

Linzer Straße 286-288

Wien
Penzing
Linzer Straße, 286-288

€518.400

€7.102 pro m²
  • Infrastruktur
  • Tiefgarage
  • Bild 1 von 1

Grundlegende Informationen

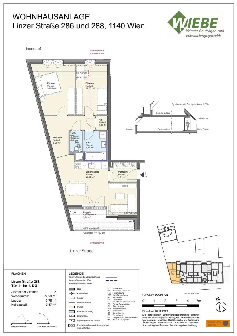
3 Zimmer

Wohnfläche 72.99 m²

Stockwerk 4 von 6

Abschnitt 288

Fertigstellung Dienstag, 18. Juni 2024

Loggia 7.78 m²


Lage von Linzer Straße 286-288

Das Projekt
Die Wiener Bauträger- und Entwicklungsges mbH (WIEBE) errichtet in der Linzer Straße eine neue Wohnhausanlage mit 34 Eigentumswohnungen samt dazugehöriger hauseigener Tiefgarage mit 23 Stellplätzen.

Wohnungsgrößen:
2 - 4 Zimmer-Wohnungen, für jede Lebenslage ist etwas dabei, ideale Freiräume wie Loggia, Terrasse oder Garten.

Die Details
Ein straßenseitiges Wohngebäude mit 31 Wohnungen mit 2-4 Zimmern, zusätzlich wird ein Einzelhaus mit 4 Zimmern, sowie ein Doppelhaus mit zwei 4-Zimmer Maisonette-Wohnungen und integrierten Büros errichtet. Die Wohnungen werden Schlüsselfertig übergeben. Das Angebot wird den unterschiedlichsten Ansprüchen mehr als gerecht: geschmackvolle Ausstattung, die Verwendung von erstklassigen Materialien durchdachte Raumaufteilung und Parkettböden in den Wohnräumen. Sämtliche Wohnungen verfügen über attraktive Freiflächen wie Balkone oder Terrassen sowie nette Eigengärten im Erdgeschoß.

Stellplätze in der Hauseigenen Tiefgarage könne ab € 29.000,-- dazu gekauft werden.

Die Infrastruktur
Das Projekt bietet eine sehr gute Infrastruktur durch Nahversorger des täglichen Bedarfs in der unmittelbaren Umgebung, zahlreiche Geschäfte entlang der Hütteldorfer Straße bzw. die Shoppingmall Auhofcenter mit seinem großen Angebot an Gastronomie und Entertainment; die Volksschule in der Hochsatzengasse liegt in Gehweite, höhere Schulen sind mit Öffis leicht zu erreichen.
Eine ausgezeichnete öffentliche Verkehrs-Anbindung ist durch die Straßenbahnlinie 52 gegeben, welche sich fast direkt vor der Haustüre befindet, ebenso die Autobuslinie 47A, die Sie zur U4-Station Ober St.Veit bringt. Ein paar Schritte weiter gelangt man zur Linie 49, die wiederum eine Anbindung an die U3 ermöglicht. Auch die A1-Autobahnauffahrt Auhof liegt nicht weit entfernt

download.png

Bauträger

Familienwohnbau Immobilienmarkt

N/A

Öffnungszeiten:

  • Mon - Thur
  • Fri

5 Abgeschlossene Projekte

8 Projekte im Bau


Mehr über Familienwohnbau Immobilienmarkt

Top-Projekte

Alle anzeigen