Zum Inhalt springen

AN DER SCHANZE 25

Wien
Floridsdorf
An der Schanze, 25

€419.000

€6.183 pro m²
  • Infrastruktur
  • Tiefgarage
  • Bild 1 von 1

Grundlegende Informationen

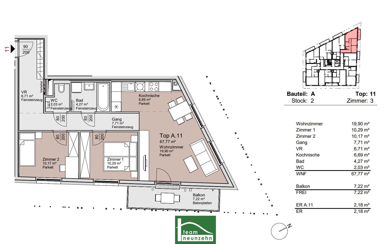
3 Zimmer

Wohnfläche 67.77 m²

Stockwerk 1 von 10

Abschnitt A

Fertigstellung Mittwoch, 25. November 2026

Balkon 7.22 m²


Lage von AN DER SCHANZE 25

Inmitten des Donaufeldes entsteht eine Oase der Ruhe mit in Summe 212 exklusiven Wohnungen, welche sich auf vier Gebäudekörper aufteilen. Die Wohnhausanlage liegt in einem autoreduzierten Gebiet nur unweit der Alten Donau und dem Donauzentrum.

Die Wohnungsgrößen in unserem Neubauprojekt variieren von 39 Quadratmetern bis hin zu geräumigen 120 Quadratmetern. Dabei sind Wohnungen mit 2 bis 4 Zimmern verfügbar, um Ihnen genügend Raum für individuelle Gestaltungsmöglichkeiten zu bieten.

Zum Verkauf gelangen insgesamt 58 Wohnungen sowie 81 Stellplätze im Bauteil A sowie 64 Wohnungen und 76 Stellplätze im Bauteil C.

Die Wohnungen verfügen über hochwertige Ausstattungen wie Fußbodenheizung mittels Fernwärme inklusive Temperierungsmöglichkeit, Außenbeschattung und moderne Materialien. Alle Wohneinheiten verfügen über Freiflächen wie Balkone, Terrassen oder Loggien.

Im Umfeld entsteht in den nächsten Jahren ein neues Stadtquartier was sowohl die Infrastruktur als auch die Wohnqualität maßgeblich prägt. Durch die Nähe zur U1 Kagran erreichen Sie die Innenstadt nach nur wenigen Haltestopps mit der U1. Auch die UNO City liegt nur 1 U-Bahn Station entfernt.

Der Baustart des Objektes erfolgt im Frühjahr 2024 und die Fertigstellung ist Ende 2026 geplant.

Die Highlights nochmals kurz für Sie zusammengefasst:

Provisionsfrei
Eigengrund – Seltenheitscharakter!
Fußbodenheizung & Warmwasseraufbereitung mittels Fernwärme
Ausgezeichnete Infrastruktur durch Nähe zum Donauzentrum
Nahe der oberen Alten Donau
Stellplätze in hauseigener Tiefgarage

Ausstattungsstandard

Die Ausstattung der Wohnungen zeichnen sich durch qualitativ hochwertige Materialien aus:

 

Fußbodenheizung mittels Fernwärme sowie Baukernaktivierung
Echtholzböden
Keramische Fließen in den Nassräumen
Außenbeschattung mittels gurtbetriebenen Raffstores (Bedienung mittels Elektroantrieb auf Kundenwunsch)
Lift
Kellerabteil
Fahrradraum & Kinderwagenabstellmöglichkeit
E-Ladestationen für die Garagenplätze auf Kundenwunsch möglich

Folgende öffentliche Verkehrsmittel stehen somit zur Verfügung

U1 Kagran
Straßenbahnlinien 25 & 26
Buslinien 22A, 26A, 27A, 93A, 94A

Energieausweis

Der Heizwärmebedarf beträgt bei Bauteil A 23,20 kWh/m²a, welcher der Klasse B entspricht

Der Heizwärmebedarf beträgt bei Bauteil D 21,90 kWh/m²a, welcher der Klasse B entspricht.

download.png

Bauträger

Teamneunzehn Immobilien GmbH

N/A

Öffnungszeiten:

  • Mon - Thur
  • Fri

8 Abgeschlossene Projekte

14 Projekte im Bau


Mehr über Teamneunzehn Immobilien GmbH

Top-Projekte

Alle anzeigen