Zum Inhalt springen

WAGRAMER STRASSE 64-66

Wien
Donaustadt
Wagramer Straße, 64-66

€749.000

€8.123 pro m²
  • Infrastruktur
  • Tiefgarage
  • Bild 1 von 1

Grundlegende Informationen

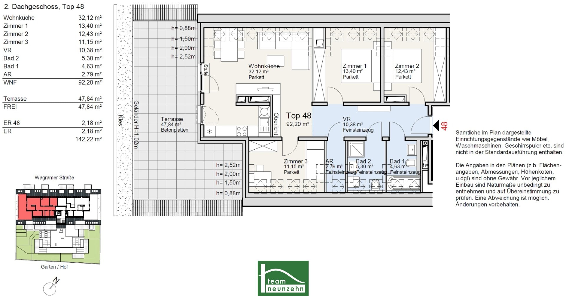
4 Zimmer

Wohnfläche 92.21 m²

Stockwerk 4 von 7

Balkon 6.11 m²


Lage von WAGRAMER STRASSE 64-66

 

Die Liegenschaft zeichnet sich vor allem durch die Bestlage – unmittelbare Nähe zur Alten Donau sowie zum Donauzentrum – als auch durch die ausgezeichneten Grundrisse aus. Die durchdachten Grundrisse mit der idealen Ausrichtung und den Weitblick garantieren ein helles Wohnambiente!

Demnach ist die Infrastruktur und Nahversorgung hervorragend. Die U1– Kagran ist ums Eck gelegen, somit erreichen Sie in wenigen Augenblicken auch das Stadtzentrum von Wien (Stephansplatz, Schwedenplatz,..). In unmittelbarer Nähe und somit fussläufig zu erreichen, befindet sich der Einkaufstempel „Donauzentrum“ und demnach ist man mit sämtlichen Geschäften des täglichen Bedarfs, Restaurants, Fitnessstudios u.v.m. versorgt. Auch die begehrte „Alte Donau“ ist nur einen Katzensprung fussläufig entfernt – demnach der Urlaub vor der Haustüre! Die UNO-City, das VIC sowie der DC-Tower sind ebenso nur eine U-Bahn-Station entfernt.

 

In Summe werden 49 Wohnungen aufgeteilt auf 7.Ebenen (EG / 1-4.OG / 2.Dachgeschosse) errichtet. Die Wohnungen weisen Flächen von ca. 40m2 – 94m2 (2-4.Zimmer) auf. Alle Wohneinheiten verfügen über eine Freifläche (Balkon, Terrasse, Loggia, Garten) von mindestens ca. 4,50m2 und erweitern somit den gefühlten Wohnbereich.

In der hauseigenen Tiefgarage kann einer von 10 „normalen“ Stellplätzen bzw. 18 Stapelparkern erworben werden.

Die Bautätigkeiten werden von einem renommierten Bauunternehmen ausgeführt und die Fertigstellung der Liegenschaft ist mit voraussichtlich Ende 2024 geplant.

 

Auf Grund der tollen Lage und der funktionalen Raumaufteilung eignen sich die Wohnungen sowohl zur Eigennutzung als auch für die Vermietung, in Form einer Vorsorgewohnung – somit stehen Ihnen hier beide Erwerbsvarianten zur Verfügung.

 

Bei gegenständlicher Liegenschaft handelt es sich um einen Baurechtsgrund. Das Baurecht wurde auf 100 Jahre abgeschlossen. Der monatliche Baurechtszins beläuft sich auf kostengünstige ca. 1,52€ | Nutzwert.

Der Abverkauf erfolgt zu Grunde dem Bauträgervertragsgesetz.

 

Das Projekt zeichnet sich vor allem durch folgende Attribute aus:

-) hochwertiger Erstbezugs-Neubau auf einem Baurechtsgrund

-) hochwertige Ausstattung (Fussbodenheizung, Sonnenschutz, Klimavorbereitung, …)

-) perfekte Grundrisse

-) ausgezeichnete Infrastruktur – ca. 10min mit der U-Bahn U1 zum Stephansplatz

-) Freiflächen (Balkon, Terrasse, Loggia, Garten) bei ALLEN Wohnungen

-) Ideal als Endnutzer- und Vorsorgewohnung geeignet

-) Stellplätze in der hauseigenen Tiefgarage

 

Ausstattungsstandard:

Bei der Realisierung des Neubaus wird großer Wert auf eine hochwertige Ausstattung sowie langlebige Materialien gelegt:

Vollwärmeschutzfassade (geringer Heizwärmebedarf = geringe Heizkosten)
Lift
Fussbodenheizung (betrieben als Zentralheizung voraussichtlich über Erdwärme)
3-fach isolierverglaste Kunststoff-/Alufenster
Sonnenschutz mit Rolläden (auch bei den Dachflächenfenstern)
Parkettboden
großformatige Fliesen 30x60cm (in den Nassbereichen)
Innentüren Weiß
hochwertige Sanitäreinrichtung
Sicherheitseingangstüre
in den letzten 2.Dachgeschossen wird eine Klimaanlagenvorbereitung ausgeführt. Bei den anderen Wohnungen ist die Einreichung für eine Klimaanlage, jedoch keine Vorbereitung berücksichtigt
Oberflächen Balkone/Terrassen: Plattenbelag im Kiesbett
Wasseranschluss auf Terrasse/Balkon
Kellerabteile
Fahrradabstell- und Kinderwagenraum
Kleinkinderspielplatz
Tiefgaragenstellplätze
 

Infrastruktur:

Die bereits begehrte Lage im 22.Bezirk, wird durch die unmittelbare Nähe der “Alten Donau” nochmals aufgewertet. Ob eine entspannte Bootsfahrt oder ein gemütlicher Spaziergang – hier stehen Ihnen sämtliche Möglichkeit zur Verfügung. Weiters befindet sich auch der Shoppingtempel “Donauzentrum” fussläufig ums Eck gelegen. Für Sportbegeisterte steht zusätzlich zu den Flächen rund um die Alte Donau auch die “Albert-Schulz-Halle”  zur Verfügung. Zwei Fitnessstudios sind ebenso öffentlich sehr gut zu erreichen. Die UNO-City sowie das VIC (Vienna International Center) sind nur 2 U-Bahn-Stationen entfernt.

Durch die tolle öffentliche Verkehrsanbindung

U1 – “Kagran”
Straßenbahnlinie 25
Buslinie 22A, 26A, 93A, 94A
erreichen Sie das Stadtzentrum von Wien (Stephansplatz) in wenigen Augenblicken.

Die Nahversorgung ist durch die unmittelbare Nähe zum Donauzentrum hervorragend. Hier stehen Ihnen von Supermärkten, Apotheken, Restaurants, Cafés, Sporteinrichtungen, Ärzte u.dgl. alles zur Verfügung.

In unmittelbarer, fussläufiger Nähe der Liegenschaft befindet sich auch ein Supermarkt (Billa).

Energieausweis:

Der Heizwärmebedarf beträgt 27,90 kWh/m²a, welcher der Klasse B entspricht. (FGEE: 0,73 – Klasse A)

download.png

Bauträger

Teamneunzehn Immobilien GmbH

N/A

Öffnungszeiten:

  • Mon - Thur
  • Fri

8 Abgeschlossene Projekte

14 Projekte im Bau


Mehr über Teamneunzehn Immobilien GmbH

Top-Projekte

Alle anzeigen