Willkommen beim Neubauprojekt am Hirschstettner Badeteich! Wir freuen uns, Ihnen unser aufregendes neues Wohnungsprojekt vorstellen zu dürfen. Mit insgesamt 99 Wohnungen bietet dieses moderne Gebäudekomplex eine breite Palette an Wohnungsgrößen und Grundrissen, um den Bedürfnissen verschiedener Familien und Lebensstile gerecht zu werden.
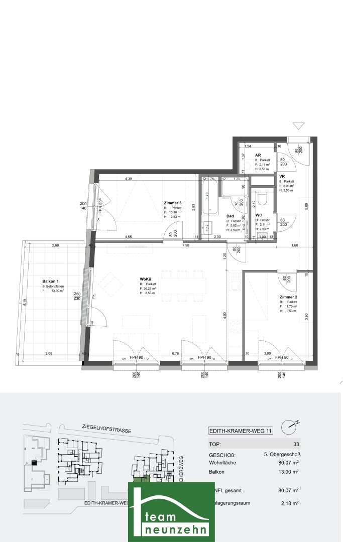
Die Wohnungsgrößen in unserem Neubauprojekt variieren von großzügigen 49 Quadratmetern bis hin zu geräumigen 124 Quadratmetern. Dabei sind Wohnungen mit 2 bis 5 Zimmern verfügbar, um Ihnen genügend Raum für individuelle Gestaltungsmöglichkeiten zu bieten. Egal ob Sie ein kleines Studio für sich allein suchen oder eine größere Wohnung für Ihre wachsende Familie benötigen, wir haben das passende Angebot für Sie.
Ein besonderes Highlight des Projekts sind die atemberaubenden Ausblicke auf den Hirschstettner Badeteich. Ein Großteil der Wohnungen verfügt entweder über einen seitlichen Blick auf den See oder sogar über direkten Seeblick. Stellen Sie sich vor, Sie könnten jeden Tag den Sonnenuntergang über dem Wasser genießen und die entspannende Atmosphäre des Sees in Ihrem Zuhause erleben.
Um den Kaufprozess für unsere Kunden so angenehm wie möglich zu gestalten, bieten wir alle Wohnungen provisionsfrei an. Das bedeutet, dass Sie beim Kauf einer Wohnung keine zusätzlichen Maklergebühren oder Provisionen zahlen müssen. Wir möchten sicherstellen, dass der Erwerb einer Wohnung in unserem Neubauprojekt so einfach und transparent wie möglich ist.
Die Fertigstellung des Projekts ist bereits erfolgt. Dies bedeutet, dass Sie schon bald in Ihre neue Traumwohnung einziehen könnten.
Die Highlights nochmals kurz für Sie zusammengefasst:
Provisionsfrei
Fußbodenheizung & Warmwasseraufbereitung mittels Fernwärme
Wohnen mit Seeblick
Perfekte Verkehrsanbindung
Ausstattungsstandard
Die Ausstattung der Wohnungen zeichnen sich durch qualitativ hochwertige Materialien aus:
Fußbodenheizung mittels Fernwärme
Echtholzböden
Keramische Fließen in den Nassräumen
Außenbeschattung lt. Bauphysikalischen Vorgaben
Glasfaseranschluss (A1 und Wien Energie)
Lift
Kellerabteil
Fahrradraum & Kinderwagenabstellmöglichkeit
Infrastruktur:
Folgende öffentliche Verkehrsmittel stehen zur Verfügung:
Buslinie 85A
U2 Hausfeldstraße (7 Min mit dem Bus 85A)
Straßenbahn 26
Energieausweis
Der Heizwärmebedarf beträgt 27,62 kWh/m²a, welcher der Klasse B entspricht.


















































