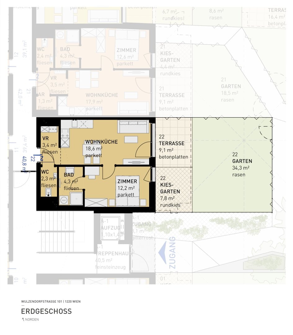
Angrenzend an das Projekt Wulzendorfstraße 103 fügt sich das Wohnbauprojekt Wulzendorfstraße 101 mit seinen 80 provisionsfreien frei finanzierte Eigentumswohnungen und 37 PKW-Tiefgaragenstellplätzen perfekt in die Umgebung ein. Die durchdachten Raumaufteilungen der 2- und 3- Zimmer-Wohnungen mit 34m² bis 87m², decken alle Bedürfnisse ab. Die jeweiligen Freiflächen, wie Loggia, Balkon, Terrasse oder Eigengarten, bieten privaten Platz im Freien.
Sollten Sie mehr Wohnraum benötigen, besprechen Sie das gerne mit dem Vertriebsteam der Haring Immobilientreuhand. Es besteht die Möglichkeit, übereinander liegende Wohnungen zur Maisonette-Wohnung (4 Zimmer) zusammen zu legen bzw. nebeneinander liegende Wohnungen zu verbinden!
Für alle Eigentümer, auch in den oberen Geschossen, offeriert sich die besondere optionale Möglichkeit eines eigenen Gartenabteils. Alle Gärten werden mit Strom- und Wasseranschluss ausgeführt.
37 PKW-Stellplätze stehen in der hauseigenen Tiefgarage bereit.
Die Infrastruktur überzeugt: der Autobus, lediglich eine Minute zu Fuß entfernt, stellt die Direktverbindung zur U-Bahn Linie U2 dar. Auch Einkaufs-, Bildungs- und Freizeitmöglichkeiten sind in wenigen Minuten erreichbar.
Alle Wohnungen werden schlüsselfertig übergeben, d.h. alle Sanitäranlagen, Fliesen und Parkettböden sind im Kaufpreis inkludiert. Die Heizung erfolgt mittels Fußbodenheizung, die Wärmeversorgung über eine energieschonende Luft-Wasser-Wärmepumpe. Details über die Ausstattung der Wohnungen entnehmen Sie gerne der Leistungsbeschreibung im Booklet.




















































