Im 3. Bezirk Wiens entstehen zwischen der Universität für Musik und darstellende Kunst und dem öffentlich erschlossenen Sünnhof neue Dachgeschoßwohnungen zwischen ca. 60 m² und 114 m². Der ehemalige Rohdachboden wird für ein modernes Wohngefühl von Grund auf saniert und ausgebaut.
Durch die angrenzende Lage an die Innere Stadt und die optimale Verkehrsanbindung durch den Bahnhof Wien Mitte, hat sich die Ungargasse zu einer attraktiven Wohngegend entwickelt.
Nur wenige Gehminuten von der Ungargasse entfernt, finden sich auf der Landstraßer Hauptstraße oder in Wien Mitte The Mall zahlreiche Einkaufsmöglichkeiten.
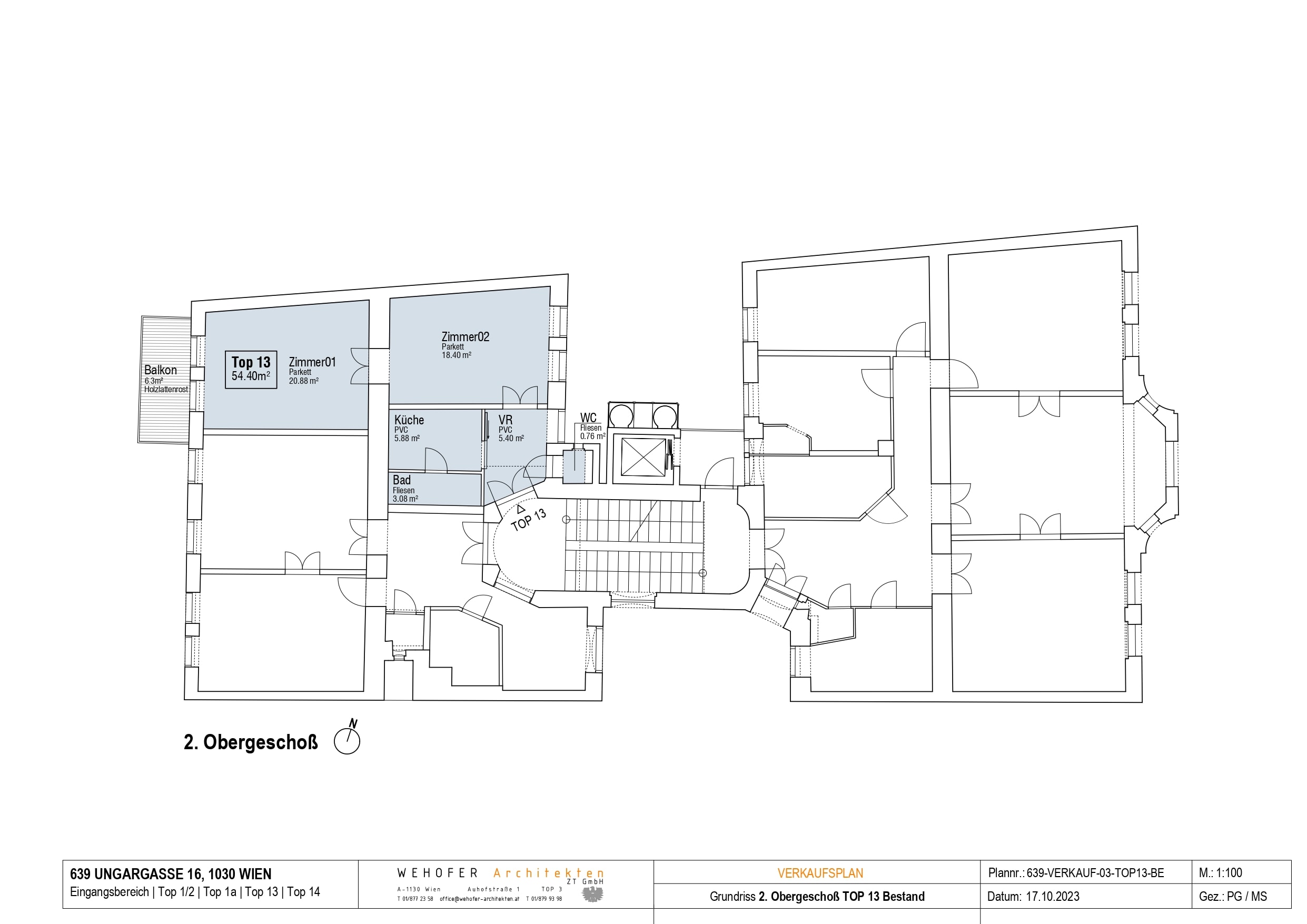
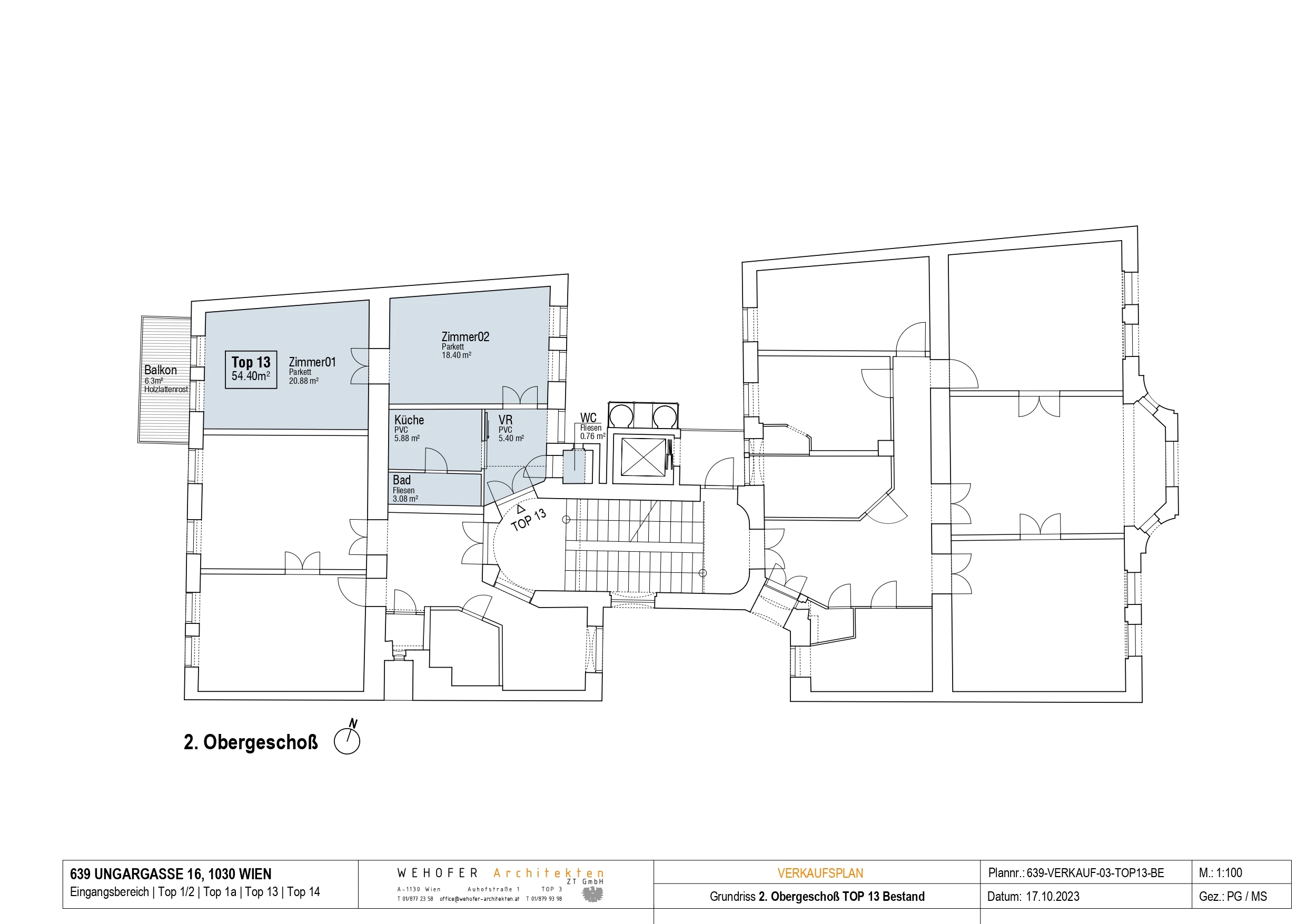
Das Zinshaus in der Ungargasse 16 wurde 1901 errichtet und besteht aus elf Bestandswohneinheiten sowie zwei Geschäftslokalen im Erdgeschoß.
Nach Abschluss der Gebäudesanierung, bei welcher die gesamte Liegenschaft an die Fernwärme angeschlossen wird sowie ein Lifteinbau erfolgt, stehen auch allen Bewohner:innen des Hauses Fahrrad-, Kinderwagenräume sowie private Kellerabteile zur Verfügung.
Im Bestandshaus stehen zwei Wohnungen zum Verkauf, welche durch den Altbauflair, großzügige Raumhöhen, Doppelflügeltüren und zweiseitige Belichtung ein besonderes Wohngefühl entstehen lassen und jeweils mit Freiflächen ausgestattet werden.
Die vier Dachgeschoßwohnungen, um welche das Bestandszinshaus erweitert wird, verfügen über Nutzflächen zwischen ca. 60 m² und 114 m².
Die Maisonettewohnungen mit zwei bis vier Zimmern sind jeweils mit Terrassen ausgestattet und barrierefrei durch den Lift erschlossen.






































































































































































