Zum Inhalt springen

Zwerngasse 49

Wien
Hernals
Zwerngasse, 49

€646.989

€9.756 pro m²
  • Infrastruktur
  • Tiefgarage
  • Bild 1 von 1

Grundlegende Informationen

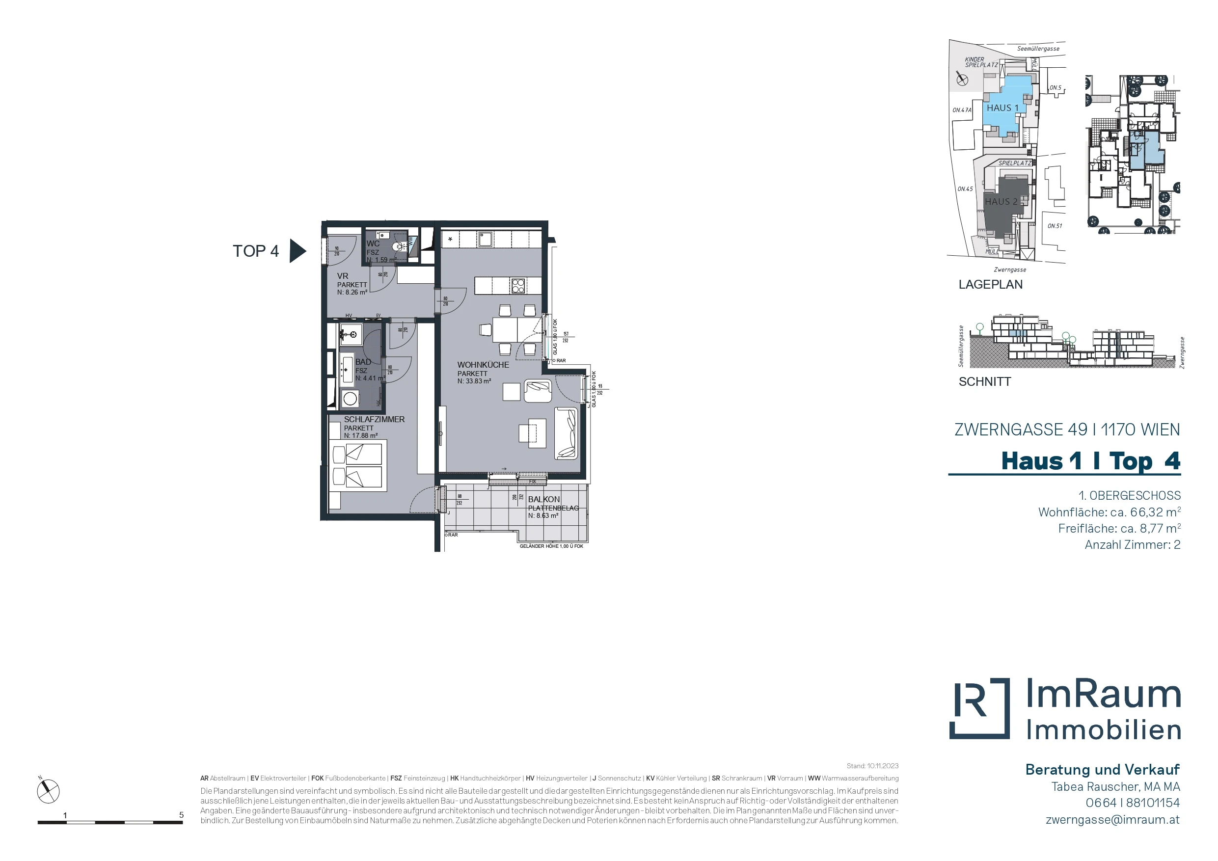
2 Zimmer

Wohnfläche 66.32 m²

Stockwerk 1 von 3

Abschnitt Haus 1

Balkon 8.63 m²


Lage von Zwerngasse 49

22 EIGENTUMSWOHNUNGEN
BAUSTART 2022
HAUSEIGENE TIEFGARAGE
OPTIMALE AUSRICHTUNG
VIELE FREIFLÄCHEN
AUSGEZEICHNETE ANBINDUNG
ANKAUF ALS EIGENNUTZER ODER
ANLEGER MÖGLICH
In Dornbach entstehen in exklusiver Lage, am Fuße des Schafbergs, unweit der Weinberge, 22 hochwertig ausgestattete Eigentumswohnungen. Die zwei Wohnhäuser sind auf vier Ebenen angelegt und punkten mit ästhetischer und zeitgemäßer Architektur, einer idealen Ausrichtung gen Süden und großzügigen Freiflächen. Als Bewohner können Sie durch die optimale öffentliche Anbindung sämtliche Vorzüge der Wiener Metropole genießen und sich trotzdem an der Naturvielfalt in unmittelbarer Nähe erfreuen.

Von der perfekt geschnittenen Single-Wohnung über ein neues Heim für die gesamte Familie bis hin zum Luxuswohntraum mit Fernblick-Terrasse. Durchdachte Grundrisse, lichtdurchflutete Wohnräume samt funktionalen Details sind unsere Grundanforderungen. Ihr Wohntraum wird bei uns zur Realität – unsere hauseigenen Architekten verwirklichen Ihre individuellen Änderungswünsche.

download.png

Bauträger

ImRaum Immobilien GmbH

N/A

Öffnungszeiten:

  • Mon.-Thur.
  • Frid.

0 Abgeschlossene Projekte

1 Projekte im Bau


Mehr über ImRaum Immobilien GmbH

Top-Projekte

Alle anzeigen