22 EIGENTUMSWOHNUNGEN
BAUSTART 2022
HAUSEIGENE TIEFGARAGE
OPTIMALE AUSRICHTUNG
VIELE FREIFLÄCHEN
AUSGEZEICHNETE ANBINDUNG
ANKAUF ALS EIGENNUTZER ODER
ANLEGER MÖGLICH
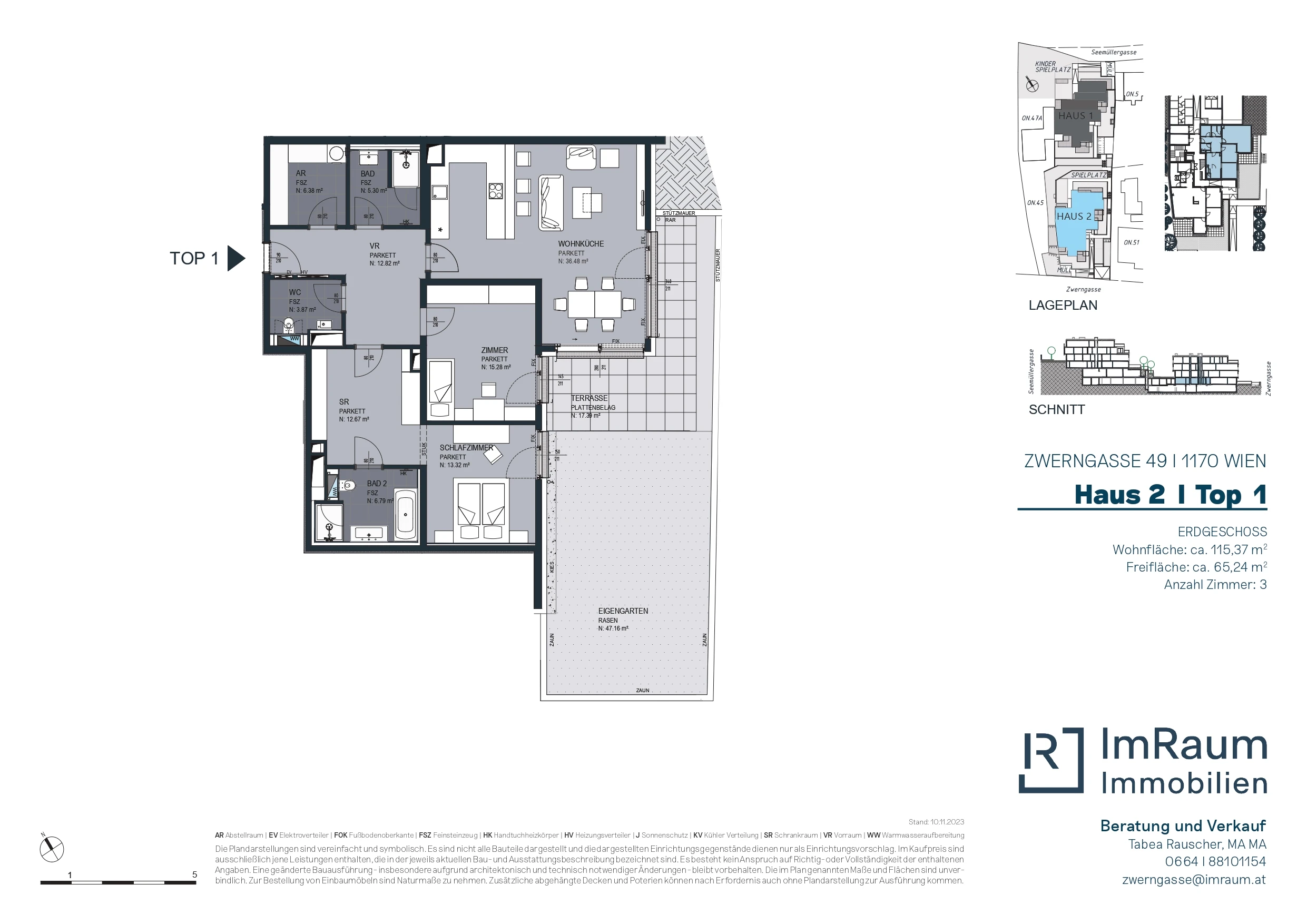
In Dornbach entstehen in exklusiver Lage, am Fuße des Schafbergs, unweit der Weinberge, 22 hochwertig ausgestattete Eigentumswohnungen. Die zwei Wohnhäuser sind auf vier Ebenen angelegt und punkten mit ästhetischer und zeitgemäßer Architektur, einer idealen Ausrichtung gen Süden und großzügigen Freiflächen. Als Bewohner können Sie durch die optimale öffentliche Anbindung sämtliche Vorzüge der Wiener Metropole genießen und sich trotzdem an der Naturvielfalt in unmittelbarer Nähe erfreuen.
Von der perfekt geschnittenen Single-Wohnung über ein neues Heim für die gesamte Familie bis hin zum Luxuswohntraum mit Fernblick-Terrasse. Durchdachte Grundrisse, lichtdurchflutete Wohnräume samt funktionalen Details sind unsere Grundanforderungen. Ihr Wohntraum wird bei uns zur Realität – unsere hauseigenen Architekten verwirklichen Ihre individuellen Änderungswünsche.







































































































































































