Type of use: Residential
For occupation: April 2024
Location assessment: very good
Architecture: resale
Condition: refurbished
Construction year: 1906
Viktorgasse 14
WienWiedenViktorgasse, 14
€1.999.000
€19.329 pro m²- Tiefgarage
- Infrastruktur
Grundlegende Informationen
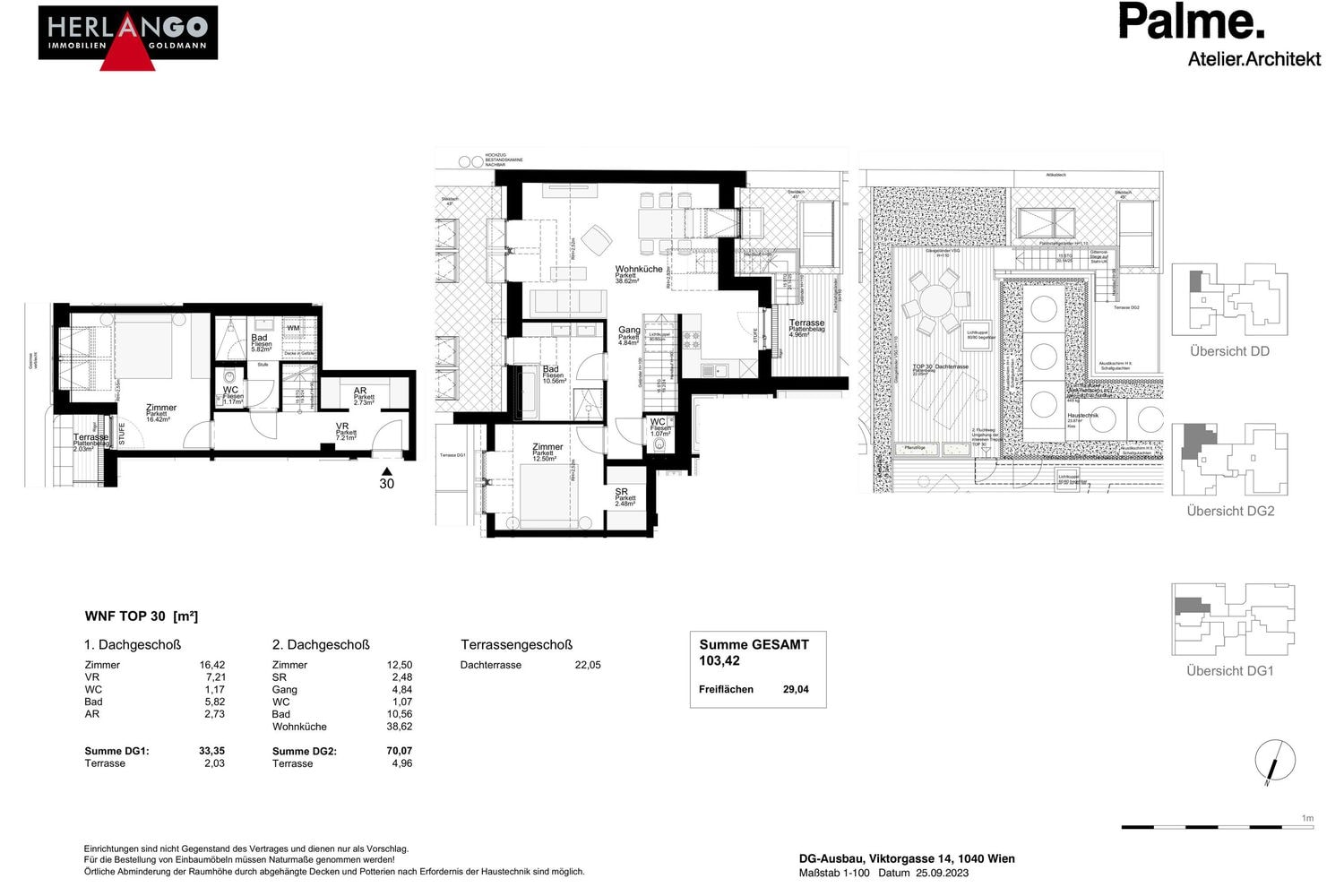
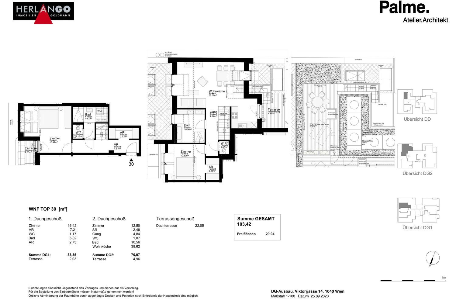
3 Zimmer
Wohnfläche 103.42 m²
Stockwerk 1 von 5
Abschnitt 1
Fertigstellung Mittwoch, 10. April 2024
Terrasse 29.04 m²
Lage von Viktorgasse 14

Bauträger
Wohnkonzept Real Estate GmbH
1 Abgeschlossene Projekte
0 Projekte im Bau
Top-Projekte
Alle anzeigen- 1150 Rudolfsheim-FünfhausReichsapfelgasse 19ab €223.146€4.600 pro m²
- 1150 Rudolfsheim-FünfhausHolochergasse 9ab €435.000€6.840 pro m²






































































































































































