Zum Inhalt springen

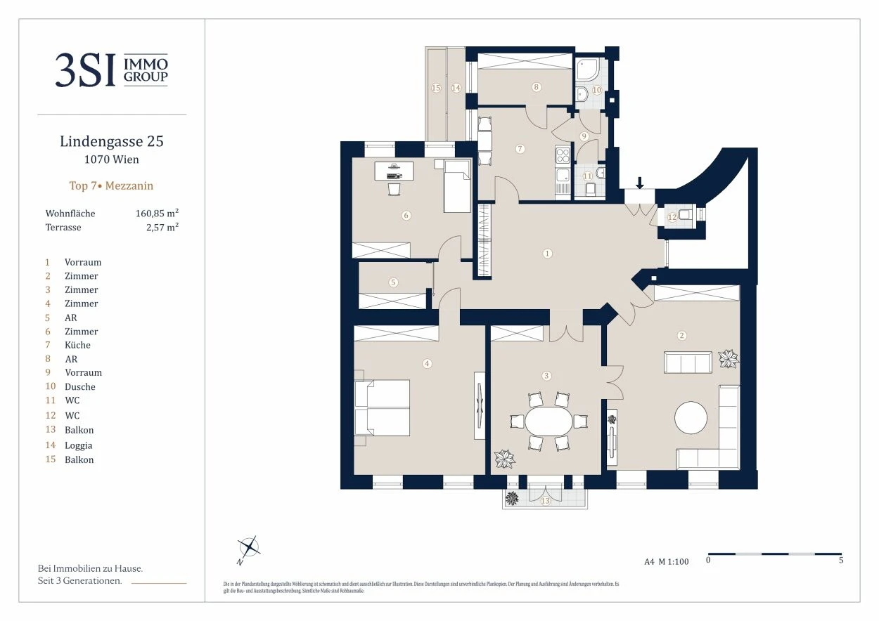
Lindengasse 25

Wien
Neubau
Lindengasse, 25

€1.499.000

€9.319 pro m²
  • Infrastruktur
  • Wenige Wohnungen auf einer Etage
  • Bild 1 von 1

Grundlegende Informationen

4 Zimmer

Wohnfläche 160.85 m²

Stockwerk 1 von 4

Abschnitt 1

Loggia 2.67 m²

Balkon 5.33 m²


Lage von Lindengasse 25

Projektbeschreibung
Der um die Jahrhundertwende errichtete Stilaltbau in der Lindengasse 25 befindet sich in einer der gefragtesten Wohngegenden des 7. Wiener Gemeindebezirks. Neben dem wunderschönen Stiegenhaus bezaubert das Gründerzeitzinshaus mit besonderen Verzierungen im Eingangsbereich, die in dieser Form der Ausgestaltung nur ein paar Mal in Wien anzutreffen sind. Die Liegenschaft verfügt über 5 Regelgeschosse und den Rohdachboden.

Zum Verkauf gelangen mehrere Wohneinheiten in verschiedenen Größen, davon wurde eine Einheit top saniert und hochwertig ausgestattet. Die weiteren Wohnungen wurden aufgefrischt und befinden sich in einem sehr guten Zustand.

Idealer können Anbindung und Lage nicht sein ! Die Liegenschaft ist nur einige Gehminuten von der beliebten Mariahilferstrasse entfernt. Die perfekte Anbindung an die öffentlichen Verkehrsmittel wie die Linien U-Bahn U2 bzw. U3, Buslinien 13A, 14A, 48A, 57A und Straßenbahnlinie 49 bieten somit einen perfekten Anschluss in die Innenstadt.

Top-Projekte

Alle anzeigen