Zum Inhalt springen

Bischoffgasse 11

Wien
Meidling
Bischoffgasse, 11

€299.000

€7.704 pro m²
  • Wenige Wohnungen auf einer Etage
  • Tiefgarage
  • Infrastruktur
  • Bild 1 von 1

Grundlegende Informationen

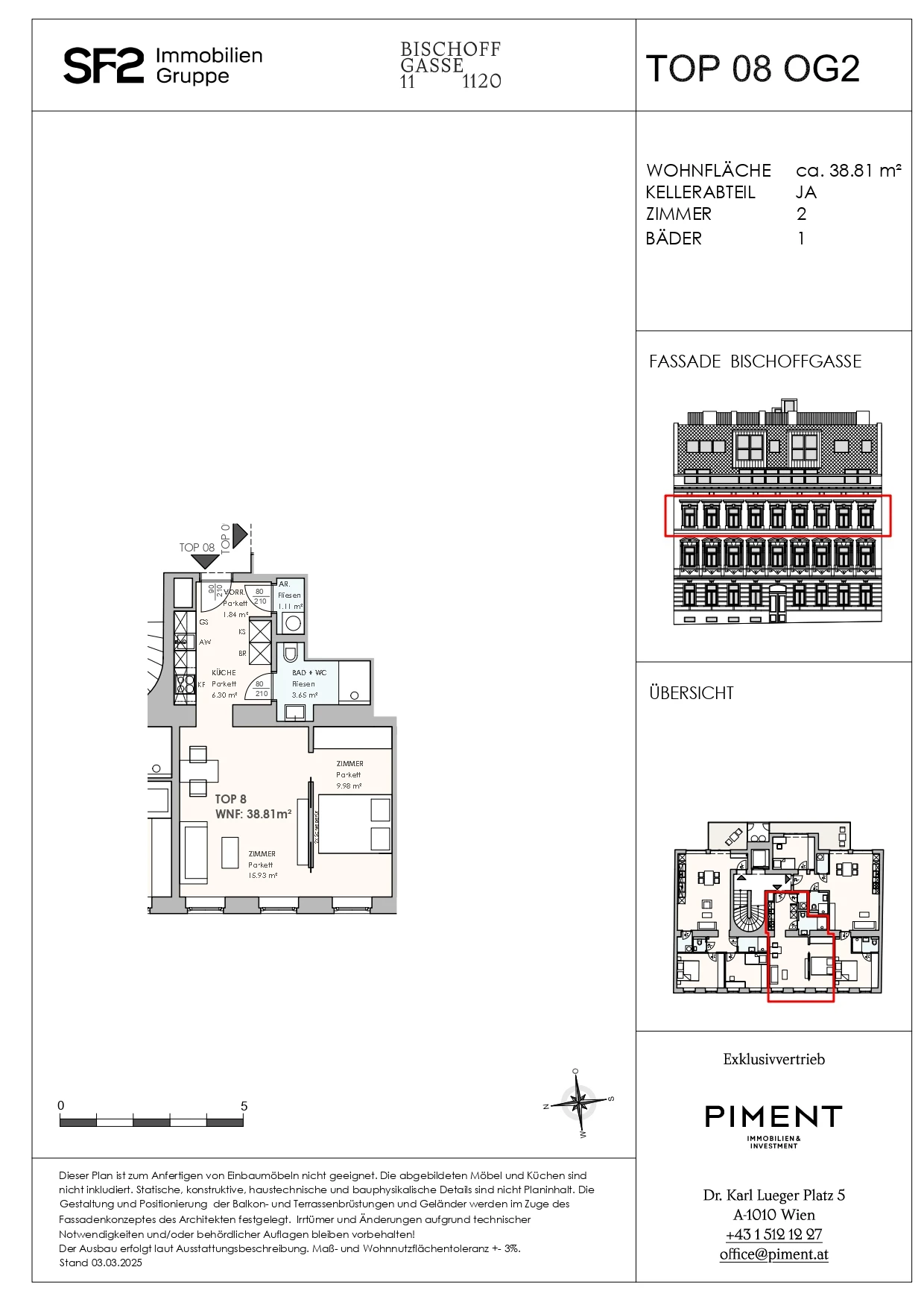
2 Zimmer

Wohnfläche 38.81 m²

Stockwerk 2 von 4

Fertigstellung Dienstag, 14. Oktober 2025


Lage von Bischoffgasse 11

Nach sorgfältiger Revitalisierung und Erweiterung eines Alt-Wiener Zinshauses eröffnen sich hier neue Möglichkeiten urbanen Wohnens: stilvoll renovierte Altbauwohnungen und großzügige Dachgeschosswohnungen mit Weitblick zum Verlieben. Diese einzigartige Immobilie bietet nicht nur ein komfortables und stilvolles Wohnambiente, sondern auch eine hervorragende Lage in einer ruhigen Straße nahe dem berühmten Schloss Schönbrunn.

In einer malerischen Einbahnstraße, die sich durch ihre hervorragende Lage nahe dem prachtvollen Schloss Schönbrunn auszeichnet, findet sich diese Immobilie. Die Nähe zu den U-Bahn-Stationen Schönbrunn und Meidlinger Hauptstraße ermöglicht eine bequeme Anbindung an das öffentliche Verkehrsnetz und verleiht dieser Adresse eine ausgezeichnete Mikro- und Makrolage. Der Innenhof dieses Hauses ist eine grüne Oase der Ruhe, die zum Verweilen einlädt und eine willkommene Flucht vor der Hektik des städtischen Lebens bietet. Genießen Sie die harmonische Symbiose aus urbaner Lebensweise und entspannter Naturnähe, die dieses einzigartige Anwesen zu bieten hat.

 

завантаження (1).png

Bauträger

PIMENT Immobilien & Investment

N/A

Öffnungszeiten:

  • Mon - Thu
  • Fri

10 Abgeschlossene Projekte

8 Projekte im Bau


Mehr über PIMENT Immobilien & Investment

Top-Projekte

Alle anzeigen