Im modernen Schlossquadrat-Viertel gelangen mehrere Altbauwohnungen zum Verkauf. Der Zustand der Objekte reicht von leicht sanierungsbedürftig bis bezugsfertig.
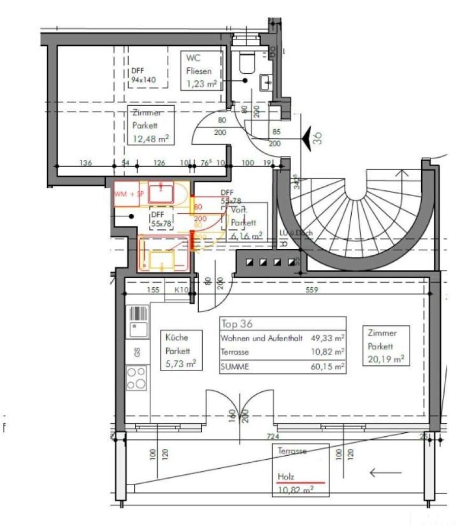
Es stehen sowohl hofseitige wie auch straßenseitige Einheiten mit 2 – 3 Zimmer mit Größen von ca. 36 bis 85 ㎡ zur Verfügung.
Wie eine anmutige römische Schönheit erstrahlt diese große Liegenschaft, die sich über 2 Hausnummern erstreckt, mit ihren Säulen und aufwendig denkmalgeschützten Verzierungen an der Fassade, die einen tiefen Blick in die Seele der Stadt gewährt und einen unfassbar sinnlichen, visuell atemberaubenden Eindruck hinterlässt. Wandern Sie auf den Spuren eines der ältesten Orte in Wien, der Aufzeichnungen bis ins 14.Jahrhundert zurück aufweist. Das nur 2 Gehminuten entfernte Schlossquadrat, ein ehemaliges und Anwesen (Schloss Margareten) mit zahlreichen Gebäudekomplexen, beherbergt mehrere ausgezeichnete Gastronomiebetriebe und besticht durch historischen Charme und romantische Gastgärten. Nur 5 Gehminuten entfernt erreichen Sie die U-Bahn-Station "U4 Pilgramgasse" die Sie zurück an die Annehmlichkeiten des modernen Lebens geleitet. Genießen Sie die Faszination der Stadt samt ihrer architektonischen Grazie, die sich auch im Inneren dieser Liegenschaft widerspiegelt. Unendlich süße Schönheit erwartet Sie, welche mit sanfter Hand zeitgemäß soeben frisch restauratorisch aufgearbeitet wurde.







































































































































































