About the project
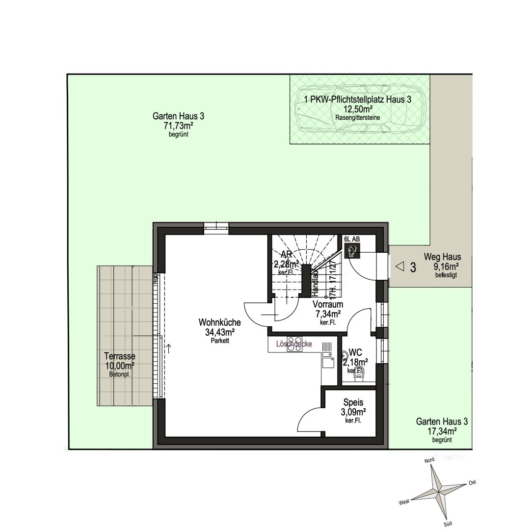
In a quiet residential area in the 22nd district, near the Lower Austrian border, this new-build project with three single-family houses is being developed. The three-storey houses offer living areas between approx. 128 m² (4 rooms) and approx. 135 m² (5 rooms).
In the surrounding area, you can expect a variety of shopping options, including the Marchfeld Center in Groß Enzersdorf. You will also find a wide selection of restaurants as well as an enticing range of leisure activities, such as an equestrian center, the picturesque lake park with Asperner See in Seestadt, and various clubs. Residents of this area can not only find peace and relaxation in their own cozy homes with gardens, but also in the spacious adjacent green spaces, which invite you to enjoy relaxing walks and invigorating bike rides or runs.
Highlights
- Shell condition, turnkey possible at an additional cost
- Windows/patio doors: triple-glazed uPVC windows
- Underfloor heating, air-source heat pumps for heating and hot water
- Preparation for air conditioning
- Private garden and terrace
- Private access road
- Car parking spaces









































































































































































