Architecture and design: The building extends over 4 floors and showcases modern architecture that blends seamlessly into the surroundings. Large window fronts ensure bright and inviting living spaces, while high-quality materials and contemporary details provide an appealing living experience.
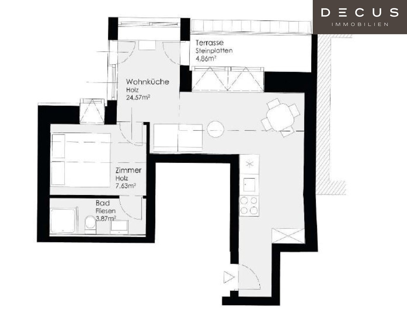
Property information and features: The 8 units vary in size from 36 m² to 56 m² and offer a variety of floor plan options to meet individual needs. Each apartment is equipped with underfloor heating, ensuring pleasant warmth. Parquet flooring in the living areas gives the apartments a modern ambience, while tiles in the sanitary rooms provide a contemporary look and easy maintenance. An efficient heat pump ensures sustainable and cost-effective heating. A bicycle storage room offers practical storage options for bicycles. An elevator is available to ensure barrier-free access to all floors.
Almost every apartment has generous outdoor spaces, whether a balcony, a terrace, or a garden, which provide an outdoor retreat and create an idyllic environment for relaxation and recreation.
Prices and availability: Prices for these exclusive apartments start from €199,000 and offer an attractive opportunity for both owner-occupiers and investors. The properties will be available soon and offer an excellent investment opportunity in one of Vienna’s most sought-after areas.
Location: The building is located in a sought-after area in Vienna’s 22nd district, Essling, known for its quiet surroundings and proximity to a wide range of amenities. The area offers excellent public transport connections as well as a variety of shopping options, restaurants, and leisure facilities.
The bus lines 98A, 99A, 99B and 88B are available. You can reach the U2 subway line with them in approx. 5–10 minutes







































































































































































