In one of the city’s most diverse and sought-after residential neighborhoods, this exceptional project is located with its 6 attic-floor units.
The staircase of the renovated turn-of-the-century building is richly ornamented; the elevator takes you to the newly constructed upper floors. The rooftop apartments open up to the sky with floor-to-ceiling windows, loggias, and terraces.
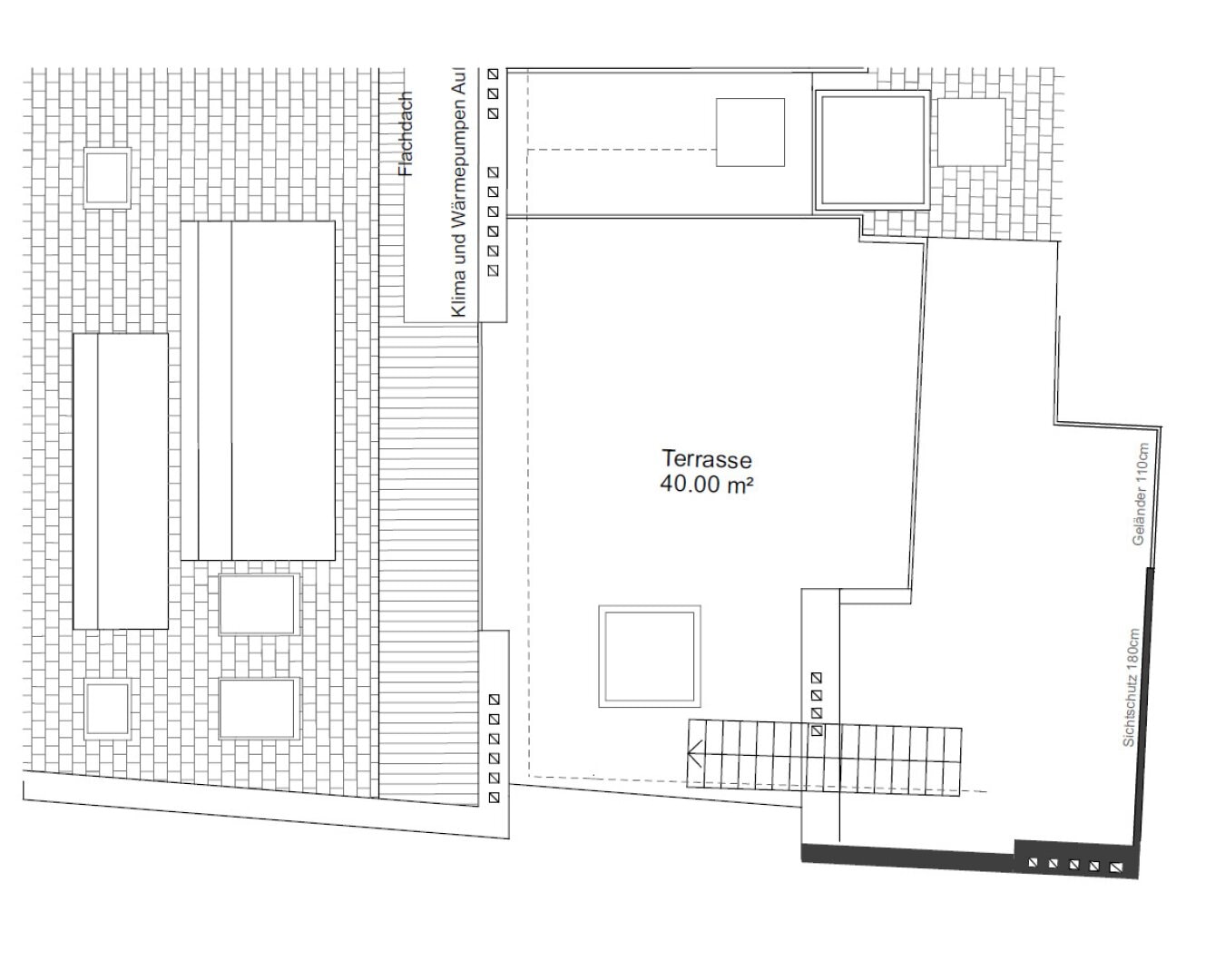
Skylights and especially tall slanted windows bring plenty of daylight even into the ancillary rooms. From the sunny, east-facing terraces you look out into a quiet inner courtyard despite the central location; the west-facing loggias and terraces offer a spectacular panoramic view over the entire city all the way to the Vienna Woods and Kahlenberg.
The high-quality fittings of the apartments also match the prestigious location in the trendy Neubau district. Efficient and ecological DAIKIN air-to-air heat pumps that both heat and cool the property, SCHÜCCO terrace elements, and Duravit as well as Hansgrohe in the sanitary area. The living areas are fitted with a real-wood parquet floor in the format 2200x138x14mm.
As one of Vienna’s best locations, excellent transport connections are of course not to be missed - U6 as well as U3 reachable in a 2-minute walk, tram and buses practically right outside the front door. If you’d rather stroll through the hip neighborhood, you can be on Mariahilfer Str. in a 2-minute walk, Vienna’s best-known shopping street with its numerous shops, restaurants, and leisure activities.
See this incomparable project for yourself at a personal appointment.
We will be happy to provide you with a detailed construction and fittings description if you are further interested.
http://www.kaiserstrasse34.at/
PROJECT
6 apartments available on the 1st attic floor and 2nd attic floor
Stylish period building with new attic conversion
Passenger elevator from ground floor to 2nd attic floor
All apartments with outdoor space
Living areas between 72m² and 88m² and 3 rooms
HIGHLIGHTS
Stunning long-distance views from the terraces
Mariahilfer Str. and Westbahnhof within walking distance
Floor-to-ceiling window elements - especially plenty of light in living spaces
Parquet floors - brushed and oiled real wood
Air-source heat pump (for heating and cooling) DAIKIN
Large-format floor and wall tiles
Underfloor heating and fan coil
Air conditioning in every room
DURAVIT and HANSGROHE fittings
Well-thought-out floor plans and optimal layout








































































































































































