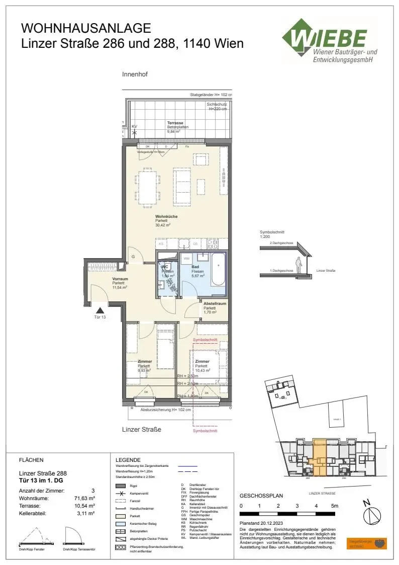
The Project
Wiener Bauträger- und Entwicklungsges mbH (WIEBE) is constructing a new residential complex on Linzer Straße with 34 owner-occupied apartments, including the building’s own underground garage with 23 parking spaces.
Apartment sizes:
2- to 4-room apartments—there is something for every stage of life, with ideal outdoor spaces such as a loggia, terrace, or garden.
The Details
A street-facing residential building with 31 apartments with 2–4 rooms; in addition, a single-family house with 4 rooms, as well as a semi-detached house with two 4-room maisonette apartments and integrated offices, will be built. The apartments will be handed over turnkey. The offer more than meets the most diverse requirements: tasteful fittings, the use of first-class materials, well-thought-out layouts, and parquet floors in the living areas. All apartments feature attractive outdoor spaces such as balconies or terraces, as well as pleasant private gardens on the ground floor.
Parking spaces in the building’s own underground garage can be purchased additionally from €29,000.--.
The Infrastructure
The project offers very good infrastructure thanks to local suppliers for daily needs in the immediate vicinity, numerous shops along Hütteldorfer Straße, and the Auhofcenter shopping mall with its wide range of dining and entertainment options; the primary school on Hochsatzengasse is within walking distance, and secondary schools are easy to reach by public transport.
Excellent public transport connections are provided by tram line 52, which is located almost right outside the front door, as well as bus line 47A, which takes you to the U4 station Ober St. Veit. A few steps further you reach line 49, which in turn provides a connection to the U3. The A1 motorway access at Auhof is also not far away







































































































































































