Skip to content

AM MAROKKANISCHEN PLATZ

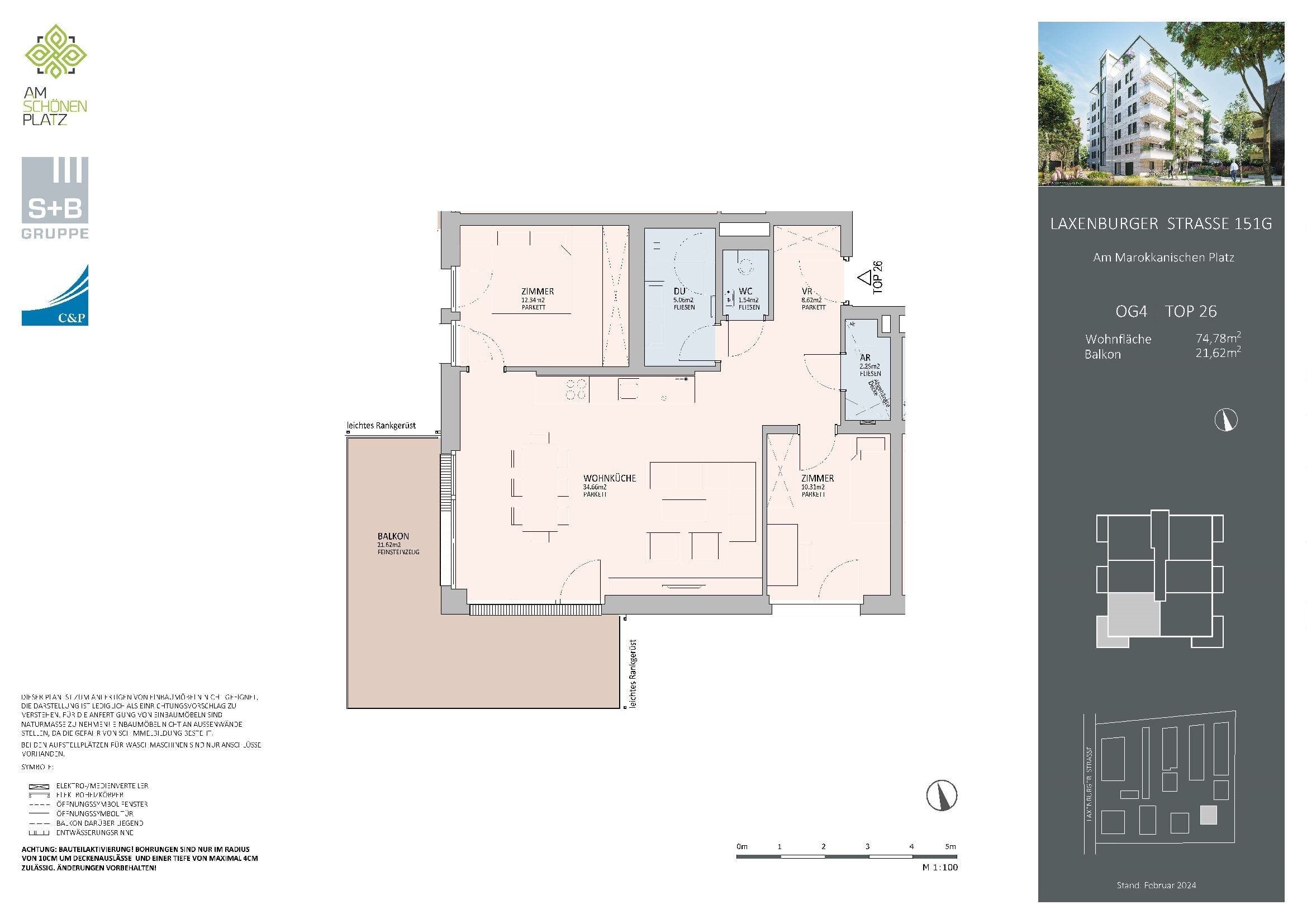
Wien
Favoriten
Laxenburger Straße, 151d

€730.000

€9.762 per m²
  • Infrastruktur
  • Tiefgarage
  • Image 1 of 1

Basic information

3 rooms

Living space 74.78 m²

Floor 4 of 7

Balcony 21.62 m²


Location of AM MAROKKANISCHEN PLATZ

Inspiriert von der Kultur und der unvergleichlichen Schönheit Marokkos, ist der Schöne Platz mehr als nur ein Wohnensemble – es ist eine Ode an die Liebe zur Natur, zur Kunst und zur Lebensfreude.

Eingebettet in die künstlerische Gartengestaltung von André Heller bieten die neuen Wohnungen einen großzügigen Blick in die weite Landschaft über die benachbarte Kleingartensiedlung. Das lebendige Farbenspiel der diversen Mosaikböden bei den Glashäusern und die mediterrane Bepflanzung im marokkanischen Garten schaffen eine harmonische Verbindung zwischen Architektur und Natur. Eine Allee aus Bambus bildet entlang der südlichen Grenze einen malerischen grünen Abschluss und eine geschützte Ruhezone für die Bewohner.

Moderne Eleganz, vereint mit marokkanischem Flair:
Die 36 exklusiven Eigentumswohnungen wurden mit äußerster Sorgfalt geplant, um ein Höchstmaß an Komfort und Ästhetik zu bieten – von den großzügigen Balkonen bis zu den geschmackvollen Details in jedem Raum.
An der Fassade rankt sich üppiges Grün über die insgesamt sieben Geschosse bis zum Dach, auf dem als Abschluss ein Kräutergarten nach Hildegard von Bingen auf die Bewohner wartet. Leuchtbänder an der Fassade, gemeinsam mit indirekter Beleuchtung an der Unterseite der Balkone, sorgen für magische Lichtstimmungen. Im Aufzug begeistert eine grüne Mooswand hinter Glas.

Die Wohnungen verfügen über ein effizientes Heiz- und Temperierungssystem mit Betonkernaktivierung und gelegentlicher Fußbodentemperierung. Es passt sich automatisch den Wetterbedingungen an und wird zentral gesteuert. Elektrisch steuerbare
Außenjalousien bieten zusätzlichen Sonnenschutz und Lichtregulierung.

Ein Ort zum Leben und Arbeiten:
Die vier separaten Büroeinheiten, verbunden mit den Wohnungen und dennoch separat zugänglich, bieten eine einzigartige Möglichkeit, das Leben und die Arbeit zu vereinen. Hier können Sie Kundentermine abhalten, Besprechungen führen oder einfach nur in Ruhe
arbeiten, ohne Ihr Zuhause verlassen zu müssen.

Eine Verbindung zur Natur und zur Stadt:
Der Schöne Platz liegt nicht nur inmitten einer grünen Oase, sondern ist auch perfekt an die Stadt angebunden. Die U-Bahn-Station U1 „Altes Landgut“ ist nur wenige Minuten entfernt, und zahlreiche Parkanlagen und Naherholungsgebiete bieten die Möglichkeit, dem Trubel der Stadt zu entfliehen.
Ein Supermarkt im angrenzenden Gebäude rundet das Angebot ab, indem er Bewohnern und Besuchern eine bequeme Einkaufsmöglichkeit direkt vor der Haustür bietet.

Zusätzlich können sich die neuen Bewohner über eine hauseigene Tiefgarage, Kellerabteile, Kinderwagen- und Fahrradabstellräume freuen.

Top projects

See all