Ländlicher Charme trifft urbanen Lifestyle: Für all jene, die bunte Vielfalt der Natur sowie die vielfältigen Möglichkeiten Wiens schätzen, errichtet die BUWOG 60 freifinanzierte Eigentumswohnungen sowie 5 freifinanzierte Maisonette-Wohnungen mit Reihenhaus-ähnlichem Charakter.
SCHÖNECK 13
WienFloridsdorfBernreiterplatz, 13
€459.100
€4.889 per m²- Infrastruktur
- Tiefgarage
Basic information
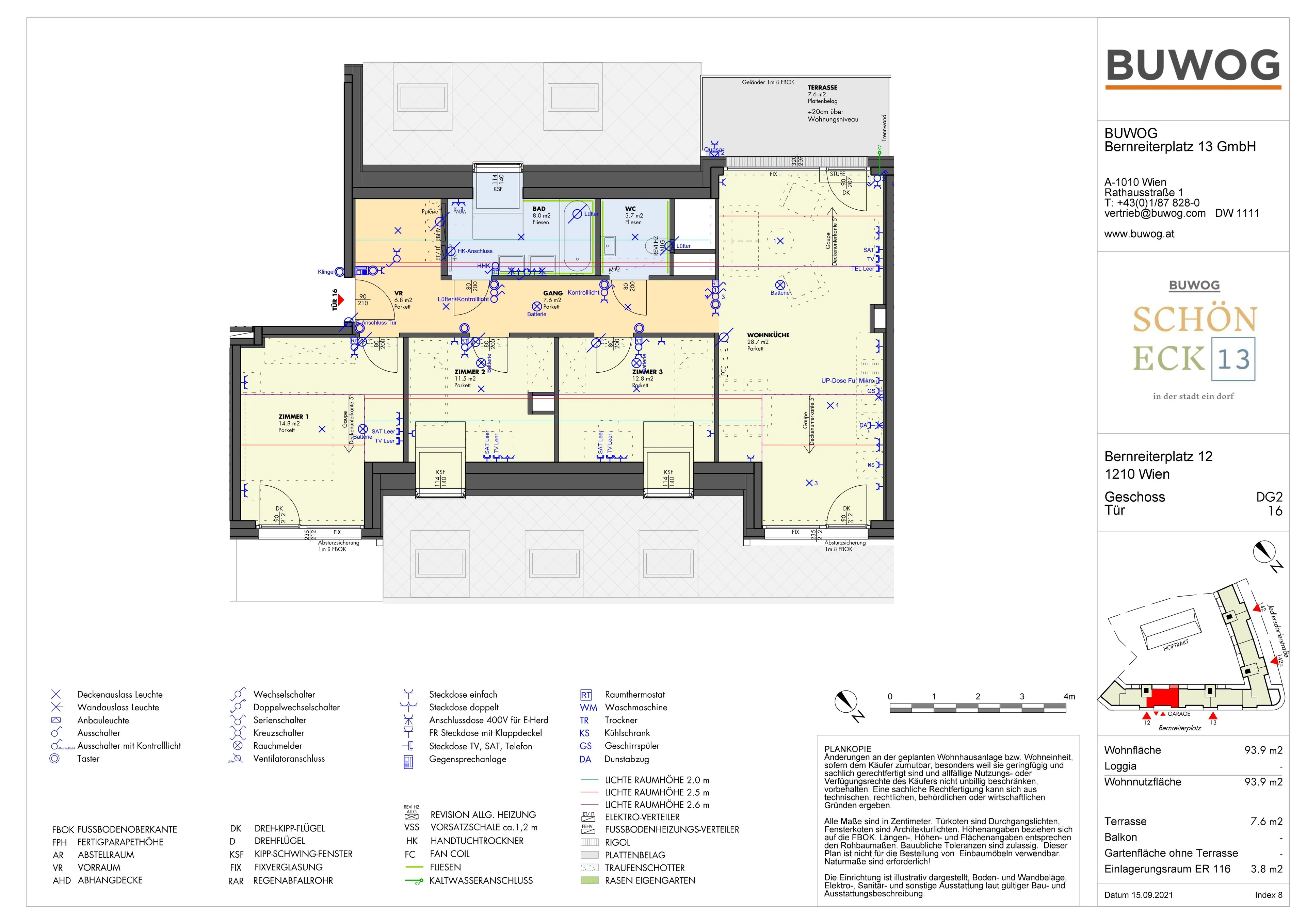
4 rooms
Living space 93.9 m²
Floor 4 of 4
Construction end Thursday, February 24, 2022
Terrace 7.6 m²
Location of SCHÖNECK 13

Developer
BUWOG
N/A
5 Projects completed
0 Projects in progress


















































