Sie wünschen sich ein Zuhause im Grünen und eine familienfreundliche Infrastruktur mit attraktiven Freizeitmöglichkeiten?
Das Projekt Wohnen am Kaisergarten begeistert mit klaren Designs, großzügigen Terrassen und traumhaften Freiflächen. 56 hochwertige Eigentumswohnungen in der Größe zwischen 32 m² bis 122 m² lassen das Flair der ehemaligen Kaisergärten in moderner Form erblühen. Außergewöhnliche Wohnungen mit moderner Architektur – helle Wohnräume und natürliche Materialien. Höchste Wärme- und Energieeffizienz sorgen für geringe laufende Kosten.
Lassen Sie sich von der einzigartigen Wohnqualität verzaubern!
Bleibende Eindrücke
Wie aus einem Guss geformt erheben sich die zeitgemäß interpretierten Gauben aus dem geneigten Dach empor, dessen goldschimmernde Verkleidung nahtlos in die Fassade überläuft und in den flexiblen Außenbeschattungen einen gelungenen wie segensreichen Abschluss findet. Je nach Sonnenstand erfreut das strahlende Dach die Betrachter:innen mit faszinierend changierenden Farben und bei Abendrot wird ein visuelles Spektakel entfacht.
Architektonisch geht das “Kaisergarten-Wohnensemble" mit der ländlich anmutenden Umgebung eine harmonische Verbindung ein und setzt zugleich ein spannendes Statement für ästhetischen Wohnkomfort in Kaiserebersdorf. Die stimmigen Proportionen, die verwendeten Materialien sowie die stringent exerzierte Designlinie bieten den zukünftigen Wohnungseigentümer:innen ein unverwechselbares Erscheinungsbild und Wohnambiente.
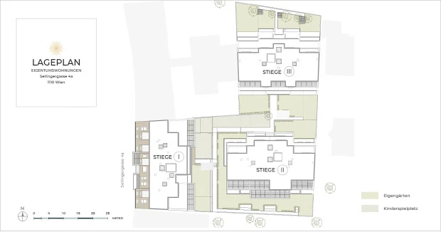
Zeitgemäße Architektur bedeutet neben anspruchsvoller Ästhetik, Wohnflächen bestmöglich zu nutzen. Die offen gestalteten Wohnbereiche vereinen entspanntes Wohnen, Kochen und Essen auf inspirierende Weise. Sämtliche Wohnungen sind architektonisch so gestaltet, dass der Übergang zwischen Drinnen und Draußen eine harmonische Einheit bildet. Unabhängig von der Zimmeranzahl verfügen alle Wohnungen am Kaisergarten über großzügig dimensionierte Freiflächen wie Loggien, Terrassen, Balkone oder Eigengärten, die zum unbeschwerten Wohnen im Freien einladen.
HOCHWERTIG AUSGESTATTET
Die zukünftigen Eigentümer:innen werden in den Wohnräumen auf hochwertigem Echtholz-Eichenparkett und in den Sanitärbereichen auf erlesenem Feinsteinzeug schreiten, die Vorzüge einer bodenbündigen Duschanlage mit rahmenlosen Klarglas-Duschtrennwänden schätzen lernen und die stets angenehme Temperierung der Fußbodenheizung genießen. Externen Komfort bietet neben der Tiefgarage (optional) mit breiteren Stellflächen der Kinderwagen- und Fahrradraum. Direkt in der Wohnanlage sorgt ein Kinder- und Jugendspielplatz sowie ein eigener Kleinkinder-Spielplatz für Spaß und Bewegung unserer Jüngsten.



















































