Skip to content

GRACE

Wien
Landstraße
Hetzgasse, 8

€389.000

€9.465 per m²
  • Underground parking
  • Infrastructure
  • Image 1 of 1

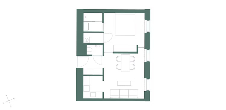
Basic information

2 rooms

Living space 41.1 m²

Floor 1 of 8

Construction end Monday, July 1, 2024


Location of GRACE

Viennese stylistic elements define the classically elegant living atmosphere in the building’s old-structure core, which also includes smart micro-apartments for commuters as well as singles. The generous floor plans in the attic maisonettes provide especially families with an exceptional home. Two townhouses—otherwise known only from London and New York—ensure an exclusive living experience.

The 3rd district is a very special mix: Biedermeier- and Gründerzeit-era buildings alongside modern architecture, urban charm embraced by the Danube Canal and crisscrossed by railway lines, proximity to Stadtpark and the Prater as well as to the city center. All of Vienna’s advantages are within easy reach.

 

image-12

Developer

Crownd

3 Projects completed

6 Projects in progress


More about Crownd
Top projects
See all