Sustainable living comfort, exquisite cuisine and pure joie de vivre in sought-after Döbling - a place to live and feel at home.
This is Quality Living by Raiffeisen WohnBau.
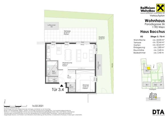
In Vienna’s 19th district, in the heart of Döbling, 4 city villas with 7 to 14 owner-occupied apartments each were built. Apartment sizes range between approx. 58 and 146 m². All apartments have their own outdoor spaces such as loggias, balconies, terraces or private gardens.
A welcoming and spacious sense of space is the focus in all apartments. Floor-to-ceiling windows promise light-filled living areas.
Highlights such as a wine cellar and a large communal area in the garden invite future residents to enjoy relaxing hours. The quiet location and yet convenient transport connections, along with perfect infrastructure and local amenities in the immediate vicinity, characterize this project.







































































































































































