Exclusive location at the foot of Hackenberg, modern design and a unique atmosphere. This is Quality Living by Raiffeisen WohnBau.
Not far from the well-known Neustift wine taverns, a high-quality residential development is being built at the foot of Hackenberg on Krottenbachstraße. Thanks to the south-facing hillside location, the apartments are optimally lit and offer beautiful views. Bus line 35A runs right outside the door, taking you to the "Krottenbachstraße" suburban rail station on line S45 as well as the "Nußdorferstraße" underground station on line U6.
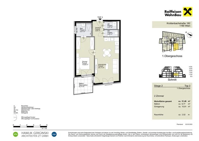
Surrounded by the Neustift vineyards and the Vienna Woods, 32 high-quality apartments will be built, each featuring either private gardens, balconies, loggias or roof terraces. Apartment sizes range from approx. 45 m² to 155 m². The apartments will be distributed across several building sections so that privacy and individuality can be offered.
The features include high-quality real-wood parquet flooring, underfloor heating and provision for EV charging stations in the underground garage. A Home Delivery Space, which is intended to enable delivery of orders even in your absence, is also planned.







































































































































































