Skip to content

KROTTENBACHSTRASSE 182

Wien
Döbling
Krottenbachstrasse, 182

€973.700

€10.765 per m²
  • Infrastruktur
  • Park
  • Image 1 of 1

Basic information

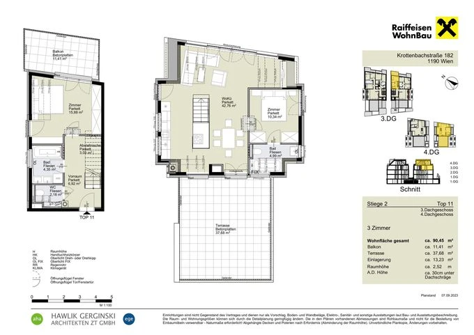
3 rooms

Living space 90.45 m²

Floor 3 of 4

Section Haus 2

Construction end Thursday, February 29, 2024

Terrace 37.68 m²

Balcony 11.41 m²


Location of KROTTENBACHSTRASSE 182

Exklusive Lage am Fuße des Hackenbergs, modernes Design und eine einzigartige Atmosphäre. Das ist Quality Living von Raiffeisen WohnBau. 

Unweit der bekannten Neustifter Heurigen entsteht am Fuße des Hackenberges in der Krottenbachstraße ein qualitativ hochwertiges Wohnbauprojekt. Durch die Südhanglage werden die Wohnungen optimal belichtet und bieten eine schöne Aussicht. Vor der Türe verkehrt die Buslinie 35A, mit dieser erreichen Sie die Schnellbahnstation "Krottenbachstraße" der Linie S45 sowie die U-Bahn Station "Nußdorferstraße" der Linie U6. 

Umgeben von den Neustifter Weinbergen und dem Wienerwald werden 32 qualitativ hochwertige Wohnungen errichtet, die entweder über Eigengärten, Balkone, Loggien oder Dachterrassen verfügen. Die Wohnungsgrößen reichen von  ca. 45 m² bis 155 m². Die Apartments werden sich auf mehrere Bauteile verteilen damit Privatsphäre und Individualität geboten werden kann.

Die Ausstattung umfasst hochwertigen Echtholzparkettboden, Fußbodenheizung und Vorbereitung von E-Ladestationen in der Tiefgarage. Ein Home Delivery Space, welcher eine Zustellung von Bestellungen auch in Abwesenheit ermöglichen soll, ist ebenso vorgesehen.

завантаження (1).png

Developer

Raiffeisen Wohnbau

N/A

Working hours:

  • Mon - Fri

4 Projects completed

6 Projects in progress


More about Raiffeisen Wohnbau

Top projects

See all