Sought-after urban residential location, family living, the lifestyle feeling of a “house in the countryside,” and excellent local amenities.
This is Quality Living by Raiffeisen WohnBau.
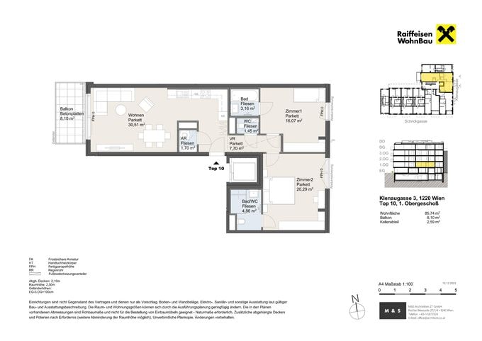
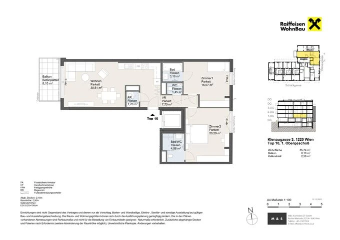
In the center of the 22nd district, on a bright corner property, a building with five townhouses and 23 apartments is being developed. The two-story townhouses are spacious and intelligently designed and offer ample space especially for families. Directly from the living area, residents will access their private gardens via the generous terrace, giving townhouse residents the lifestyle feeling of a “house in the countryside” right in the middle of the city. The varied mix of apartments with 2 to 4 rooms – all with large outdoor spaces in the form of loggias, balconies, or terraces – offers space for every way of life. On the ground floor, a small, barrier-free one-room apartment is also planned, which would also be well suited for use as a doctor’s office or therapy room. The toddlers’ playground is located in the inner courtyard.
The location of our project at Klenaugasse 3 perfectly combines home, work, living, and shopping. The U1 station “Kagraner Platz,” tram line 26, and bus 27A are all within walking distance in just a few minutes. A supermarket is being built in the immediate neighborhood, and Westfield Donauzentrum is also ideal for shopping trips. The entire area is thriving, and you benefit from local suppliers, schools, and cafés in the immediate vicinity.







































































































































































