Skip to content

KLENAUGASSE

Wien
Donaustadt
Klenaugasse, 3

€423.500

€6.977 per m²
  • Park
  • Infrastruktur
  • Tiefgarage
  • Image 1 of 1

Basic information

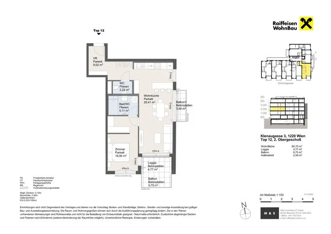
2 rooms

Living space 60.7 m²

Floor 2 of 5

Construction end Sunday, March 2, 2025

Loggia 4.77 m²

Balcony 6.75 m²


Location of KLENAUGASSE

Gefragte urbane Wohnlage, familiäres Wohnen, Lebensgefühl von „Haus am Land“ und beste Nahversorgung.

Das ist Quality Living von Raiffeisen WohnBau.

Im Zentrum des 22. Bezirkes entsteht auf einer hellen Eckliegenschaft ein Baukörper mit fünf Townhäusern und 23 Wohnungen. Die zweistöckigen Townhäuser sind großzügig und intelligent konzeptioniert und bieten insbesondere Familien ausreichend Platz. Direkt vom Wohnraum wird man über die weiträumige Terrasse in die jeweiligen Eigengärten gelangen, wodurch den Townhaus-Bewohnern mitten in der Stadt das Lebensgefühl eines „Hauses am Land“ vermittelt wird. Der vielfältige Wohnungsmix aus 2 bis 4 Zimmer Apartments – alle mit großen Freiflächen in Form von Loggien, Balkonen oder Terrassen – bietet für jede Lebensform Platz. Im Erdgeschoß ist überdies eine kleine, barrierefreie ein-Zimmer Wohnung geplant, die auch als Ordination oder Therapieraum gut nutzbar wäre. Der Kleinkinderspielplatz befindet sich im Innenhof.

Die Lage unseres Projektes in der Klenaugasse 3 verbindet Zuhause, Arbeit, Leben und Einkaufen perfekt. Die U1 Station „Kagraner Platz“, die Straßenbahnlinie 26 und der Bus 27A sind fußläufig in wenigen Minuten erreichbar. In der direkten Nachbarschaft entsteht ein Supermarkt und das Westfield Donauzentrum bietet sich ebenfalls für Einkaufsbummel an. Die gesamte Gegend floriert und Sie profitieren von Nahversorgern, Schulen und Cafés in der unmittelbaren Umgebung.

завантаження (1).png

Developer

Raiffeisen Wohnbau

N/A

Working hours:

  • Mon - Fri

4 Projects completed

6 Projects in progress


More about Raiffeisen Wohnbau

Top projects

See all